Продажа квартир / Гостинки, Пермь, 5 550 000
Кратко
ID | 39789022 |
---|---|
Категория | Гостинки |
Город | Пермь |
Этаж | 8 |
Этажность | 16 |
Материал стен | монолит |
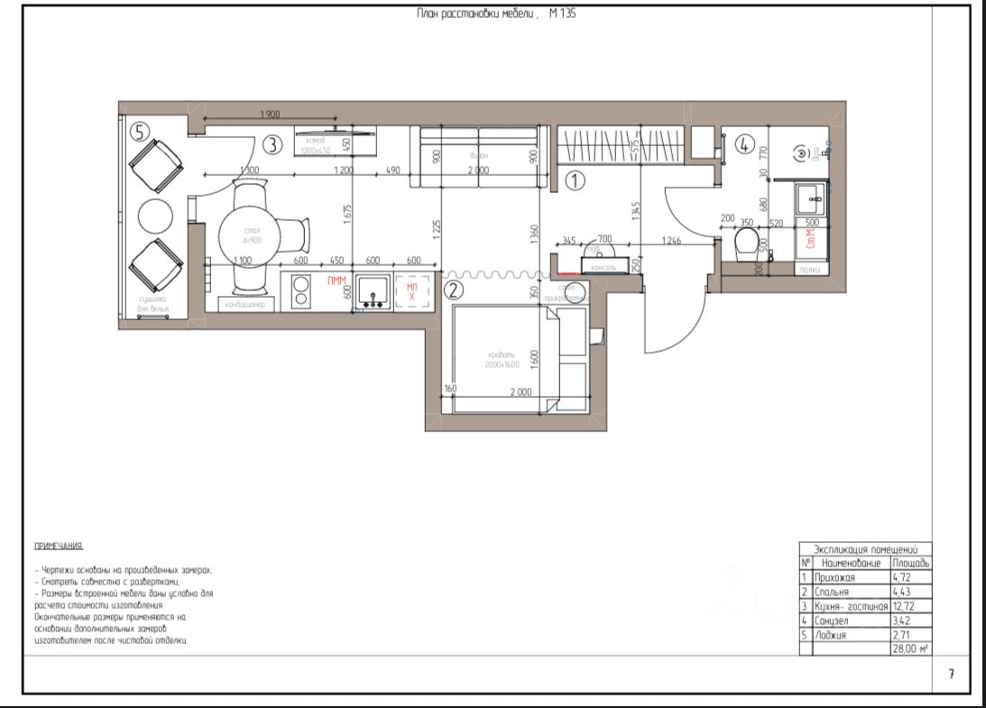
Площадь общая | 28 |
Площадь кухни | 12 |
Продам квартиру с дизайнерским ремонтом в новом современном районе Перми. Все что видите на фото остается покупателю.
Студия получилась на удивление просторная, находиться в ней приятно и стены не жмут.
Только высококачественные материалы, техника. На полу кварцвинил, износостойкий материал. Стены под покраску.
Вся мебель встроенная, выполнялась под заказ.
Потолок натяжной с теневым профилем, никаких отваливающихся резинок на стыке со стенами не будет.
Дверь в санузел скрытого монтажа, дорогая фурнитура. Унитаз - инсталляция, смесители немецкие Am. Pm.
Разнообразные световые сценарии, использовали качественные светильники. Перенесены розетки, добавлены новые для комфортного проживания.
В коридоре продуманная система хранения, хватит места для каждой мелочи.
Спальное место организовано в нише, в потолке есть направляющая для шторы, чтобы отделить пространство. Диван расправляется, можно разместить 4 человека в квартире.
Кухня с встроенной техникой- холодильник с морозильной камерой, посудомойка, вытяжка, плита и микроволновая печь. Предусмотрен вывод для кондиционера.
В данный момент квартира сдается в аренду, показы после 10 сентября.
Есть дизайн-проект со схемами, планировкой, указанием материалов.
Огороженная территория, детская площадка, туалет и колясочная на первом этаже. Всегда чистые и ухоженные коридоры.
Тихий красивый район, развитая инфраструктура. Рядом продуктовые магазины, аптеки, маркетплейсы, лицей 10, детский сад, остановка общественного транспорта.
Студия получилась на удивление просторная, находиться в ней приятно и стены не жмут.
Только высококачественные материалы, техника. На полу кварцвинил, износостойкий материал. Стены под покраску.
Вся мебель встроенная, выполнялась под заказ.
Потолок натяжной с теневым профилем, никаких отваливающихся резинок на стыке со стенами не будет.
Дверь в санузел скрытого монтажа, дорогая фурнитура. Унитаз - инсталляция, смесители немецкие Am. Pm.
Разнообразные световые сценарии, использовали качественные светильники. Перенесены розетки, добавлены новые для комфортного проживания.
В коридоре продуманная система хранения, хватит места для каждой мелочи.
Спальное место организовано в нише, в потолке есть направляющая для шторы, чтобы отделить пространство. Диван расправляется, можно разместить 4 человека в квартире.
Кухня с встроенной техникой- холодильник с морозильной камерой, посудомойка, вытяжка, плита и микроволновая печь. Предусмотрен вывод для кондиционера.
В данный момент квартира сдается в аренду, показы после 10 сентября.
Есть дизайн-проект со схемами, планировкой, указанием материалов.
Огороженная территория, детская площадка, туалет и колясочная на первом этаже. Всегда чистые и ухоженные коридоры.
Тихий красивый район, развитая инфраструктура. Рядом продуктовые магазины, аптеки, маркетплейсы, лицей 10, детский сад, остановка общественного транспорта.
Контакты на сайте: