Продажа квартир / Гостинки, Санкт-Петербург, 14 800 000
Кратко
| ID | 39950693 |
|---|---|
| Категория | Гостинки |
| Город | Санкт-Петербург |
| Этаж | 3 |
| Этажность | 10 |
| Материал стен | монолит |
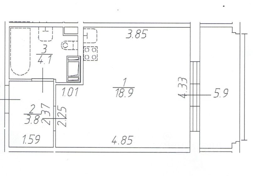
| Площадь общая | 34 |
Квартира расположена в жилом комплексе бизнес-класса Палацио. Закрытая охраняемая территория, просторные дворы без машин с несколькими детскими площадками. Шаговая доступность от ст.м Горный институт (2 мин пешком), лучших высших учебных заведений Санкт-Петербурга (СПБГУ, Горный университет, НИУ ВШЭ и др), многочисленных магазинов, ресторанов, кафе, пекарен и прочего, остановок общественного транспорта.
Уютная, теплая, светлая квартира с видом на тихий благоустроенный двор. Есть утепленный балкон с подогревом пола. По сути он является дополнительной комнатой. В УК ЖК Палацио установлены требования к изменениям, влияющим на внешний вид фасада. Ремонт балкона выполнен в полном соответствии с ними.
В 2025 году выполнена замена счетчиков ХВС и ГВС, установлена новая мебель в ванную комнату и импортная сантехника (Испания).
Квартира продается с мебелью (шкафы для одежды, кухонный уголок, стеллаж и др.).
Агентов прошу не беспокоить!!!
Уютная, теплая, светлая квартира с видом на тихий благоустроенный двор. Есть утепленный балкон с подогревом пола. По сути он является дополнительной комнатой. В УК ЖК Палацио установлены требования к изменениям, влияющим на внешний вид фасада. Ремонт балкона выполнен в полном соответствии с ними.
В 2025 году выполнена замена счетчиков ХВС и ГВС, установлена новая мебель в ванную комнату и импортная сантехника (Испания).
Квартира продается с мебелью (шкафы для одежды, кухонный уголок, стеллаж и др.).
Агентов прошу не беспокоить!!!
Контакты на сайте: