Продажа квартир / 4-комн., Красноярск, 6 200 000
Кратко
| ID | 39887985 |
|---|---|
| Категория | 4-комн. |
| Город | Красноярск |
| Кол.во комнат | 4 |
| Этаж | 3 |
| Этажность | 5 |
| Материал стен | панель |
| Площадь общая | 77.5 |
| Площадь жилая | 60 |
| Площадь кухни | 6.5 |
Продам большую квартиру с хорошей планировкой и просторными комнатами
В собственности более 30 лет, родители жили в этой квартире с самого момента постройки дома, съезжают уже в свой частный дом, квартира пустая, можно заезжать сразу после сделки, никаких обременений нет, быстрая продажа, подходит под ипотеку и материнский капитал
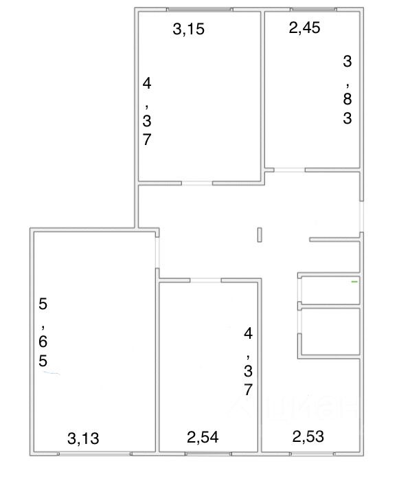
В квартире полноценные 4 комнаты отдельная кухня, раздельные ванна и туалет, 2 кладовки и просторный коридор в центре квартиры. Окна выходят на две стороны
Полы залиты, проводка и сантехника новые, везде окна пвх, входная дверь новая, все сделано для удобного и безопасного проживания
Зимой в квартире тепло, а летом прохладно, в подъезде недавно сделан ремонт, везде чисто, коляски и велосипеды можно оставлять на первом этаже
Прямо под окнами огромная парковка, место есть всегда
До остановки идти пешком меньше минуты, на таком же расстоянии: озон, валдберис, разгуляй и много другого
Во дворе живет много детей, ребенку скучно точно не будет. Весной поставят новую детскую площадку
Рядом несколько детских садов, пешком идти с ребенком около 10 минут, до школ так же. В 5 минутах ходьбы построили футбольный манеж, рядом новый гигантский бассейн
Недалеко большой парк и гипермаркет Аллея, сотни вариантов секций и кружков для детей
Дом находится в тихом, но при этом развитом и развивающемся районе, с удобной транспортной развязкой по очень привлекательной цене, это самое выгодное предложение на рынке, комиссию платить ни кому не нужно, продает собственник
Информация для агентов!!!!
Звонить тогда, когда у вас есть реальный покупатель и вы хотите прийти на просмотр.
В собственности более 30 лет, родители жили в этой квартире с самого момента постройки дома, съезжают уже в свой частный дом, квартира пустая, можно заезжать сразу после сделки, никаких обременений нет, быстрая продажа, подходит под ипотеку и материнский капитал
В квартире полноценные 4 комнаты отдельная кухня, раздельные ванна и туалет, 2 кладовки и просторный коридор в центре квартиры. Окна выходят на две стороны
Полы залиты, проводка и сантехника новые, везде окна пвх, входная дверь новая, все сделано для удобного и безопасного проживания
Зимой в квартире тепло, а летом прохладно, в подъезде недавно сделан ремонт, везде чисто, коляски и велосипеды можно оставлять на первом этаже
Прямо под окнами огромная парковка, место есть всегда
До остановки идти пешком меньше минуты, на таком же расстоянии: озон, валдберис, разгуляй и много другого
Во дворе живет много детей, ребенку скучно точно не будет. Весной поставят новую детскую площадку
Рядом несколько детских садов, пешком идти с ребенком около 10 минут, до школ так же. В 5 минутах ходьбы построили футбольный манеж, рядом новый гигантский бассейн
Недалеко большой парк и гипермаркет Аллея, сотни вариантов секций и кружков для детей
Дом находится в тихом, но при этом развитом и развивающемся районе, с удобной транспортной развязкой по очень привлекательной цене, это самое выгодное предложение на рынке, комиссию платить ни кому не нужно, продает собственник
Информация для агентов!!!!
Звонить тогда, когда у вас есть реальный покупатель и вы хотите прийти на просмотр.
Контакты на сайте: