Продажа квартир / 4-комн., Новосибирск, 25 700 000
Кратко
| ID | 39965862 |
|---|---|
| Категория | 4-комн. |
| Город | Новосибирск |
| Кол.во комнат | 4 |
| Этаж | 8 |
| Этажность | 9 |
| Материал стен | кирпич |
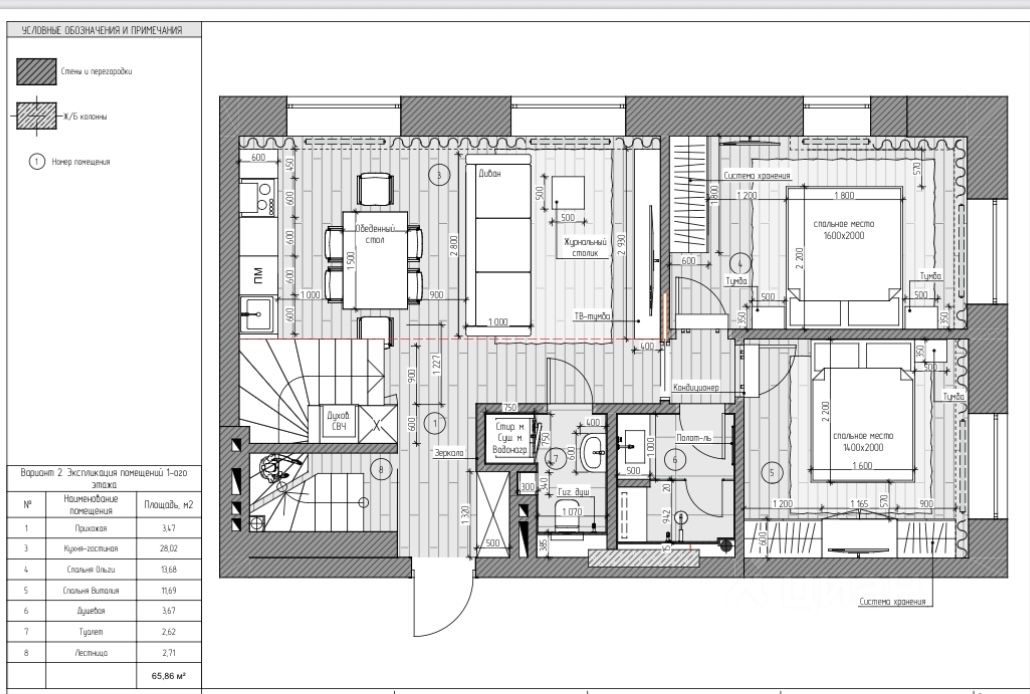
| Площадь общая | 112 |
| Площадь жилая | 73 |
| Площадь кухни | 23 |
Прошу агентов по недвижимости не предлагать услуги по продаже и продвижению, звоните, если есть покупатель.
Продается просторная 4-комнатная квартира в новом доме бизнес-класса всего в 3 минутах пешком от метро Заельцовская и Тимирязевского сквера. Квартира находится на 8 этаже кирпичного дома, построенного в 2023 году (дом уже практически заселён) . Высота потолков впечатляющая — 6 метров, что делает пространство особенно светлым и воздушным, есть возможность установить дровяной камин.
Квартира без ремонта, что дает возможность создать интерьер своей мечты (спальни, кабинеты, сауны, комнату для йоги и занятий спортом, 2 санузла). Планировка свободная- можно сделать с четырьмя изолированными комнатами, можно и меньше. Подходит как для большой семьи, так и для пары деловых людей, занимающихся бизнесом.
Дом оборудован пассажирским и грузовым лифтами, поэтому вам будет удобно перемещаться даже с тяжелыми грузами. Для вашего автомобиля предусмотрена подземная парковка, поэтому вы всегда сможете найти место для машины.
Район с развитой инфраструктурой: в шаговой доступности находятся школы, детские сады, клиники и магазины. Отличная транспортная доступность и удобный выезд на основные магистрали города.
Квартира продается от собственника, без комиссии. Все документы готовы к сделке, 1 взрослый собственник, возможна ипотека.
Приглашаем вас на просмотр!
Продается просторная 4-комнатная квартира в новом доме бизнес-класса всего в 3 минутах пешком от метро Заельцовская и Тимирязевского сквера. Квартира находится на 8 этаже кирпичного дома, построенного в 2023 году (дом уже практически заселён) . Высота потолков впечатляющая — 6 метров, что делает пространство особенно светлым и воздушным, есть возможность установить дровяной камин.
Квартира без ремонта, что дает возможность создать интерьер своей мечты (спальни, кабинеты, сауны, комнату для йоги и занятий спортом, 2 санузла). Планировка свободная- можно сделать с четырьмя изолированными комнатами, можно и меньше. Подходит как для большой семьи, так и для пары деловых людей, занимающихся бизнесом.
Дом оборудован пассажирским и грузовым лифтами, поэтому вам будет удобно перемещаться даже с тяжелыми грузами. Для вашего автомобиля предусмотрена подземная парковка, поэтому вы всегда сможете найти место для машины.
Район с развитой инфраструктурой: в шаговой доступности находятся школы, детские сады, клиники и магазины. Отличная транспортная доступность и удобный выезд на основные магистрали города.
Квартира продается от собственника, без комиссии. Все документы готовы к сделке, 1 взрослый собственник, возможна ипотека.
Приглашаем вас на просмотр!
Контакты на сайте: