Продажа квартир / 4-комн., Краснодар, 9 300 000
Кратко
ID | 39819232 |
---|---|
Категория | 4-комн. |
Город | Краснодар |
Кол.во комнат | 4 |
Этаж | 4 |
Этажность | 5 |
Материал стен | кирпич |
Площадь общая | 62.3 |
Площадь жилая | 46.8 |
Площадь кухни | 6 |
Фото вы просмотрели, переходим к деталям.
Продажа от собственника.
Проедается просторная четырехкомнатная квартира в центре Краснодара, угол улиц Красных Партизан и Рашпилeвcкой. Один квартал отделяет от улицы Красной.
Идеальное сочетание центра города, со всей ему доступной инфраструктурой и наличие загородной тишины. В ленте фото вы видели двор, большие деревья, которые и атмосферу создают и шумы поглощают и микроклимат создают, также деревья излюбленное место певчих птиц, в сезон по ночам поют соловьи.
Расположение окон на две стороны обеспечивает пространство светом и кислородом, это позволяют корректировать климат без использования техники в теплый сезон.
Окна четырёх комнат выходят на восток.
На территории, есть спортивная, детская и тренажёрная площадки, что также вы видите на фото.
Квартира требует ремонта.
Это дает возможность создать дом вашей мечты.
Межкомнатные стены квартиры не несущие — позволит адаптировать пространство под ваш вкус и удобство.
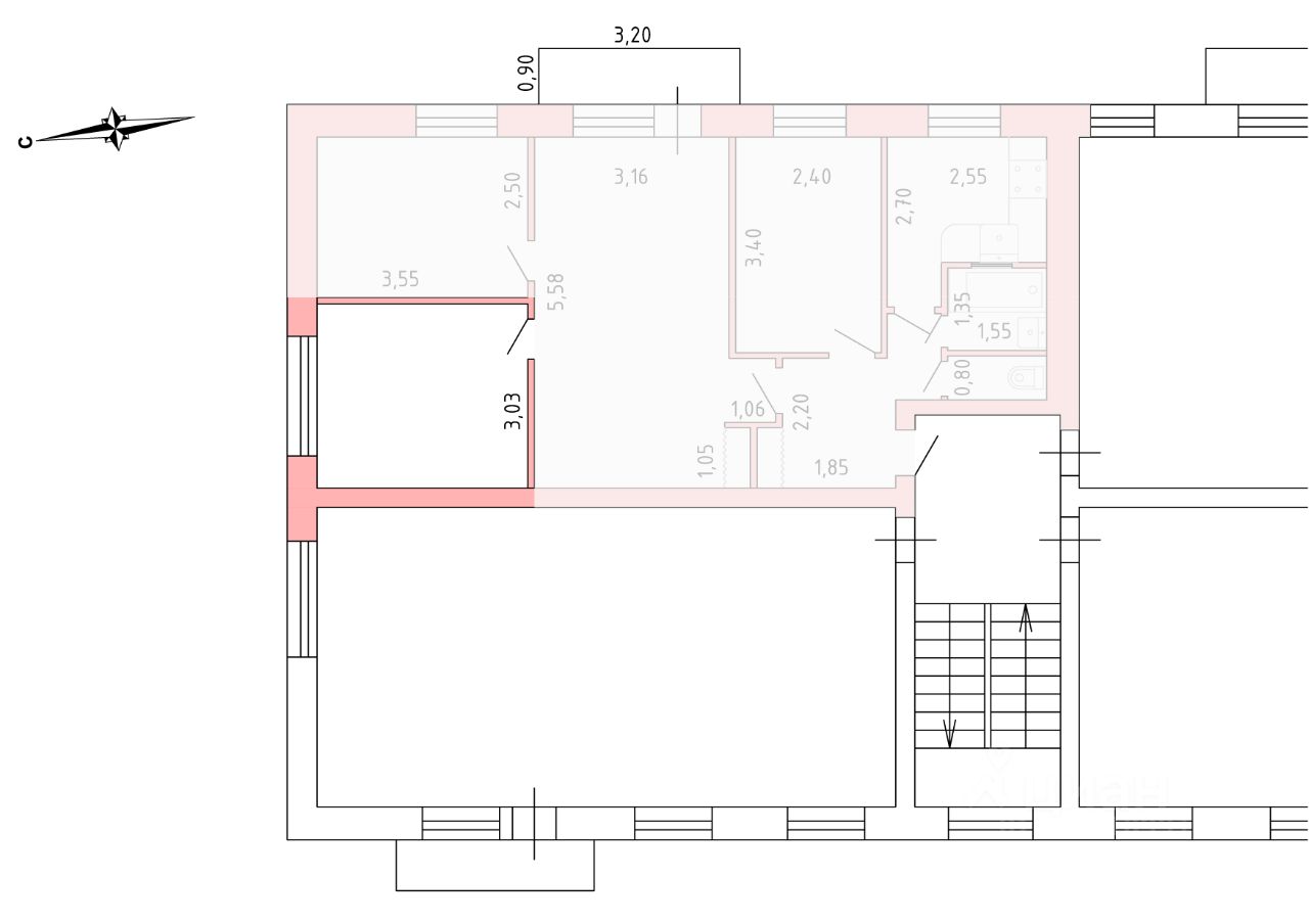
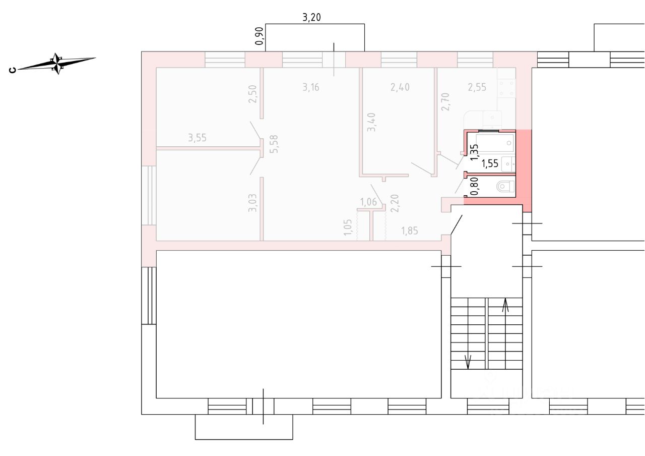
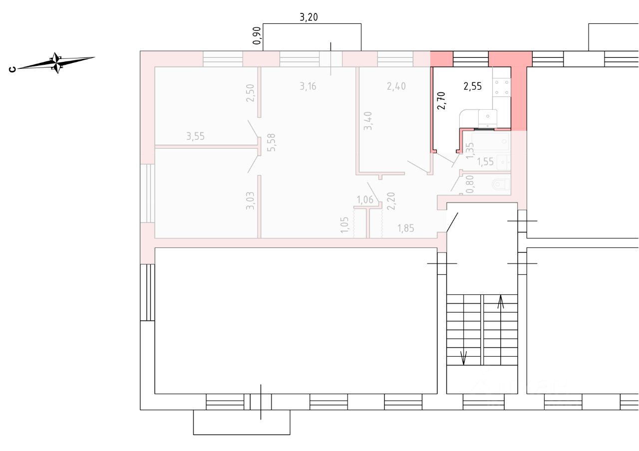
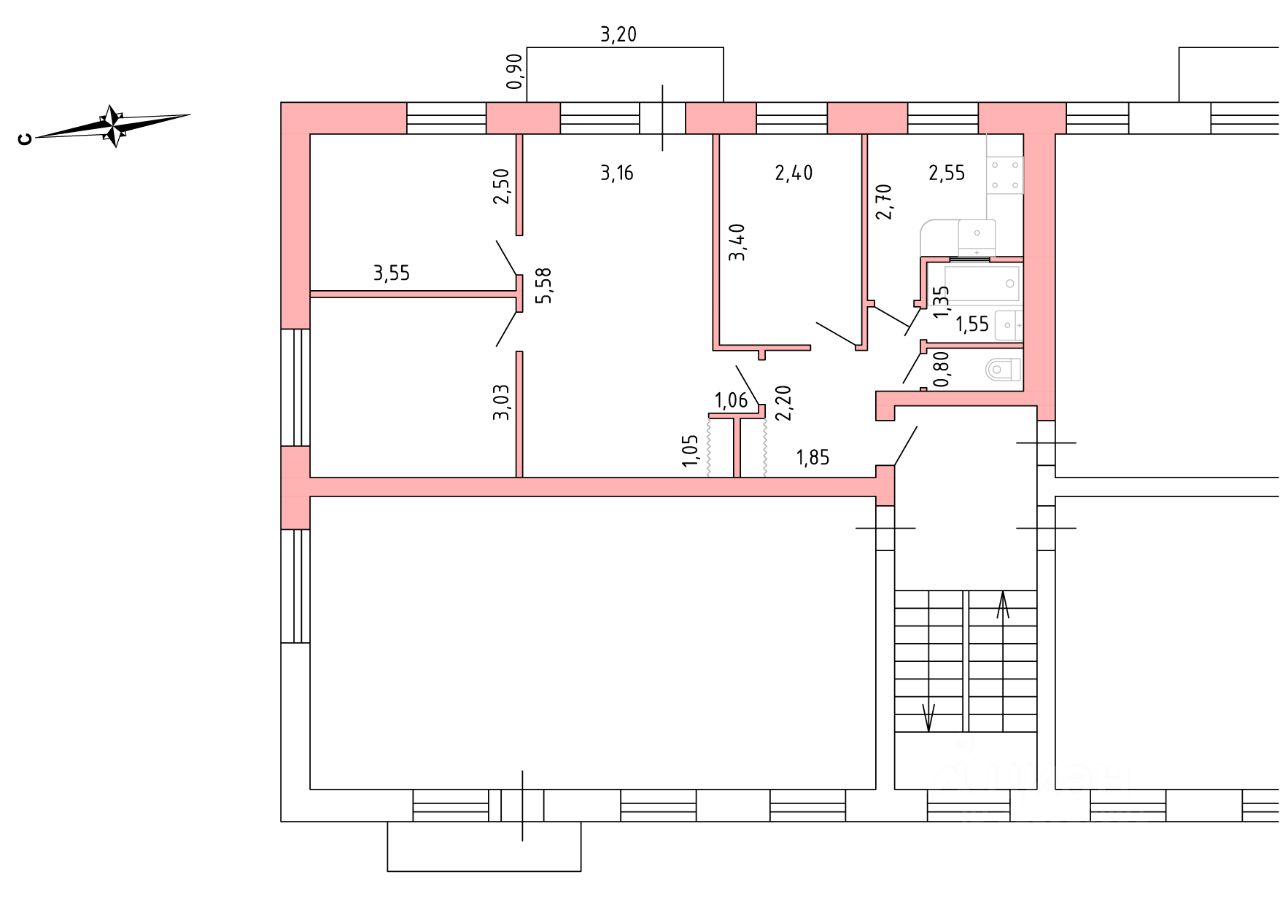
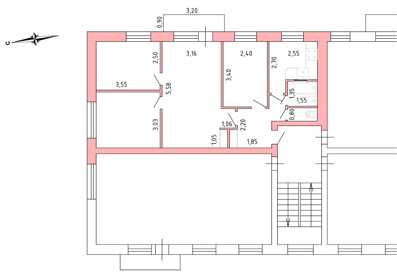
С размерами комнат можете ознакомится в ленте фото, там представлен план.
Окна заменены.
Балкон не застеклен.
Общая площадь квартиры - 62,3 кв.м.
Расположена на 4-м этаже.
Стены у дома кирпичные, обеспечивают отличную тепло- и шумоизоляцию.
Дом газифицирован. Проведён капитальный ремонт крыши и подъезда, заменены все коммуникации.
С момента заселения семья владеет квартирой. От лица владельцев сказать можем следующее: территориальное расположение дома супер, соседи прекрасные, квартира зимой теплая, в жаркое время года открытые окна отлично справляются с задачей охлаждения, во дворе тихо.
В шаговой доступности детские сады, школы, банки, магазины, парки, прогулочные зоны, торговые и развлекательные центры, кафе и рестораны.
Продажа квартир в доме редкое явление, дом действительно отличный и расположение.
Если еще есть вопросы ПИШИТЕ.
РИЕЛТОРАМ ОБРАЩАТЬСЯ ТОЛЬКО В СЛУЧАЕ НАЛИЧИЯ РЕАЛЬНОГО КЛИЕНТА, договора сотрудничества НЕ заключаю. Прошу уважать время друг друга.
Спасибо за понимание!
Продажа от собственника.
Проедается просторная четырехкомнатная квартира в центре Краснодара, угол улиц Красных Партизан и Рашпилeвcкой. Один квартал отделяет от улицы Красной.
Идеальное сочетание центра города, со всей ему доступной инфраструктурой и наличие загородной тишины. В ленте фото вы видели двор, большие деревья, которые и атмосферу создают и шумы поглощают и микроклимат создают, также деревья излюбленное место певчих птиц, в сезон по ночам поют соловьи.
Расположение окон на две стороны обеспечивает пространство светом и кислородом, это позволяют корректировать климат без использования техники в теплый сезон.
Окна четырёх комнат выходят на восток.
На территории, есть спортивная, детская и тренажёрная площадки, что также вы видите на фото.
Квартира требует ремонта.
Это дает возможность создать дом вашей мечты.
Межкомнатные стены квартиры не несущие — позволит адаптировать пространство под ваш вкус и удобство.
С размерами комнат можете ознакомится в ленте фото, там представлен план.
Окна заменены.
Балкон не застеклен.
Общая площадь квартиры - 62,3 кв.м.
Расположена на 4-м этаже.
Стены у дома кирпичные, обеспечивают отличную тепло- и шумоизоляцию.
Дом газифицирован. Проведён капитальный ремонт крыши и подъезда, заменены все коммуникации.
С момента заселения семья владеет квартирой. От лица владельцев сказать можем следующее: территориальное расположение дома супер, соседи прекрасные, квартира зимой теплая, в жаркое время года открытые окна отлично справляются с задачей охлаждения, во дворе тихо.
В шаговой доступности детские сады, школы, банки, магазины, парки, прогулочные зоны, торговые и развлекательные центры, кафе и рестораны.
Продажа квартир в доме редкое явление, дом действительно отличный и расположение.
Если еще есть вопросы ПИШИТЕ.
РИЕЛТОРАМ ОБРАЩАТЬСЯ ТОЛЬКО В СЛУЧАЕ НАЛИЧИЯ РЕАЛЬНОГО КЛИЕНТА, договора сотрудничества НЕ заключаю. Прошу уважать время друг друга.
Спасибо за понимание!
Контакты на сайте: