Продажа квартир / 3-комн., Реж, 3 190 000
Кратко
| ID | 39810694 |
|---|---|
| Категория | 3-комн. |
| Город | Реж |
| Кол.во комнат | 3 |
| Этаж | 1 |
| Этажность | 2 |
| Материал стен | кирпич |
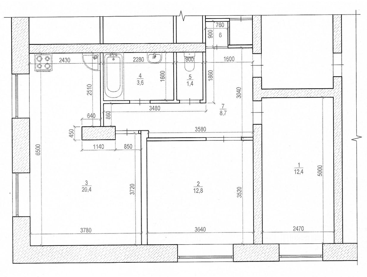
| Площадь общая | 60 |
| Площадь жилая | 40 |
| Площадь кухни | 7 |
Продаётся 3 комнатная квартира на шестом участке (мкр. Быстринский) общей площадью 60 кв.м, на 1 этаже двухэтажного одноподъездного дома. Дом кирпичный, стены 70 см, бетонные межэтажные перекрытия. Несколько лет назад в доме произведен капремонт включая водопроводную, отопительную и канализационную системы. Домофон.
Просторная квартира с современным ремонтом, высота потолков 3 м, раздельный санузел, все комнаты изолированные. Теплый пол в ванной и туалете. Имеются кладовка и погреб.
Дом расположен на тихой улице. Рядом имеется вся инфраструктура, школа, детские сады, досуговые центры, аптеки, магазины, все в шаговой доступности.
Просторная квартира с современным ремонтом, высота потолков 3 м, раздельный санузел, все комнаты изолированные. Теплый пол в ванной и туалете. Имеются кладовка и погреб.
Дом расположен на тихой улице. Рядом имеется вся инфраструктура, школа, детские сады, досуговые центры, аптеки, магазины, все в шаговой доступности.
Контакты на сайте: