Продажа квартир / 3-комн., Россия, Новосибирская область, село Прокудское, Строительная улица, 2 550 000

Кратко

ID 39842271
Категория 3-комн.
Страна Россия
Регион Новосибирская область
Город село Прокудское
Улица Строительная улица
Номер дома д.5
Кол.во комнат 3
Этаж 2
Этажность 2
Материал стен кирпичный
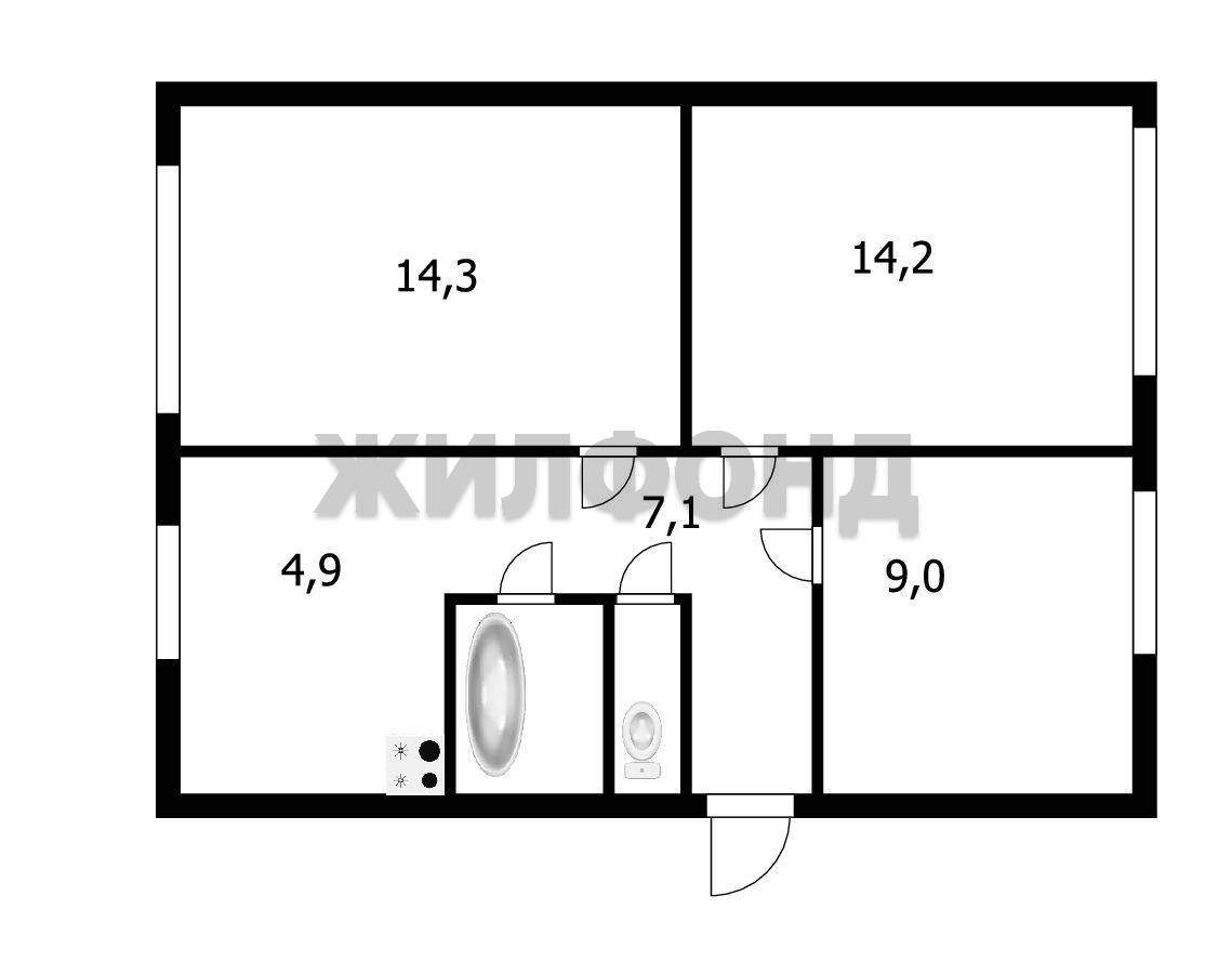
Площадь общая 53
Площадь жилая 37.5
Площадь кухни 4.9
Телефон
3 комн. квартира по ул. Строительная. Общей площадью: 53.00 кв.м. В продаже 3-К квартира в с. Прокудское. Цена ПОДАРОК! Квартира расположена на 2-м этаже. Все комнаты изолированные. Раздельный санузел. Требуется косметический ремонт! Газовое отопление. центральные вода и канализация. Имеется небольшой хоз. блок рядом с домом. В селе развитая инфраструктура: 2 детских сада, школа, культурно-досуговый центр, амбулатория, супер-маркеты, аптеки, пункты выдачи товаров, точки питания (роллы, пицца, выпечка и многое другое) . По трудоустройству (множество вакансий и должностей с доставкой до места работы) . Подходит под любые формы расчета (маткап, сертификат, ипотека, наличные) . Помогу получить кредитное решение. Возможен обмен на вашу недвижимость. Возможна продажа в рассрочку. При звонке, пожалуйста, сообщите номер варианта - JV003054141936 [#7278318#]

Карта

Похожие

3-комн.
Площадь м2: 53/37.5/4.9
Этаж: 2/2
3-комн.
Площадь м2: 47.9/33.6/5.1
Этаж: 4/5
3-комн.
Площадь м2: 62/45/6
Этаж: 1/5
3-комн.
Площадь м2: 62.8//8
Этаж: 4/5