Продажа квартир / 3-комн., Россия, Свердловская область, Екатеринбург, Республиканская улица, 8 728 897

Кратко

ID 39938772
Категория 3-комн.
Страна Россия
Регион Свердловская область
Город Екатеринбург
Метро проспект Космонавтов
Улица Республиканская улица
Номер дома д.5
Кол.во комнат 3
Этаж 4
Этажность 16
Материал стен монолит
Балкон лоджия
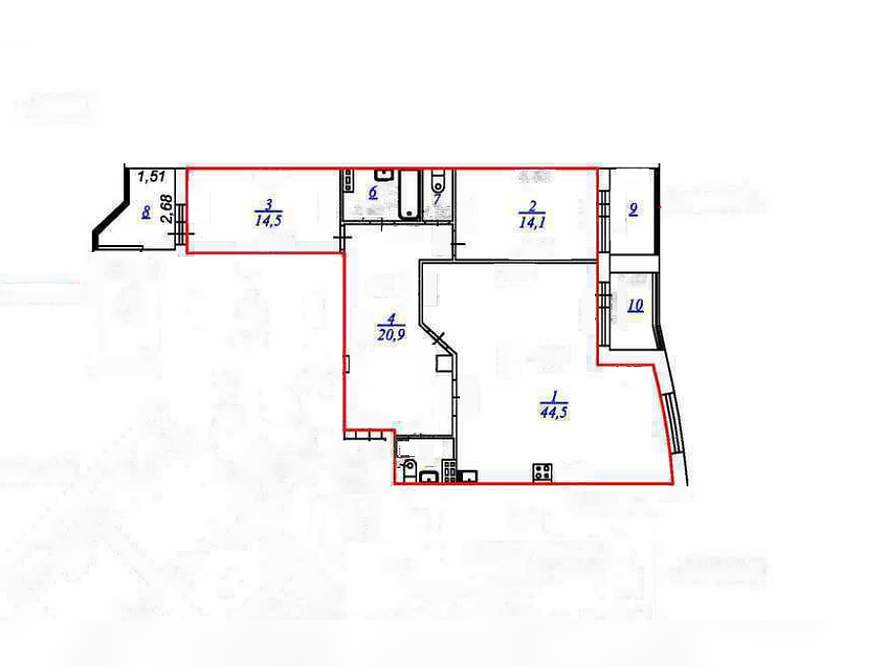
Площадь общая 103.1
Площадь жилая 74.79
Площадь кухни 20
Продаётся трёхкомнатная квартира от банка в жилом комплексе премиум-класса «Соловьи». Хотите сочетать спокойный отдых среди природы с преимуществами комфортной городской инфраструктуры? Тогда эта квартира создана специально для вас. Почему стоит выбрать нашу недвижимость: Элегантная эргономика пространства - квартира площадью 103,1 м включает просторную кухню-гостиную 44,7 м, две изолированных спальни по 14,3 м каждая, два раздельных санузла, вместительную прихожую с возможностью организации встроенного гардероба, три светлые лоджии с великолепным видом. Экономия и комфорт - собственная автономная котельная на крыше обеспечит вам круглогодично горячую воду высокого качества и возможность существенно снизить расходы на коммунальные услуги. Благоприятная экология и уютный двор - благоустроенный внутренний двор комплекса оборудован современной игровой зоной для детей, идеально подойдёт семьям с детьми любого возраста. Для тех, кто предпочитает активный образ жизни - рядом находятся спортивный центр Victory Sport и знаменитый Парк Победы с оздоровительной тропой здоровья, велосипедными дорожками и зимними развлечениями. Уединение на природе - всего несколько минут пешком до ухоженной березовой рощи с чистейшим лесным воздухом, пляжиком, спортивными сооружениями и уютными зонами отдыха, позволяющими насладиться тихим семейным досугом или дружескими посиделками на свежем воздухе. Удобство автовладельцев - достаточное количество парковочных мест во дворе исключит проблемы с поиском места для автомобиля даже в часы пик. Условия покупки: - Оформление через простой и прозрачный прямой договор купли-продажи непосредственно с банком. - Полностью юридически чистая сделка: жилье принадлежит банку, никаких обременений, долгов по услугам ЖКХ, зарегистрированных жильцов. - Возможность воспользоваться ипотекой с нашей поддержкой оформления документов. Приобретайте эту уникальную возможность проживать комфортно, наслаждаться природой и экономить средства каждый день! Обращайтесь сейчас, чтобы узнать подробности сделки и убедиться лично, насколько выгодно стать собственником этой прекрасной квартиры. [#7565750#]

Карта

Похожие

3-комн.
Площадь м2: 103.5/75.15/20
Этаж: 2/16
3-комн.
Площадь м2: 103.1/74.79/20
Этаж: 4/16
3-комн.
Площадь м2: 102.6/74.34/20
Этаж: 6/16
3-комн.
Площадь м2: 103.9/75.51/20
Этаж: 1/16
3-комн.
Площадь м2: 103.1/74.79/20
Этаж: 5/16