Продажа квартир / 2-комн., Бугры, 11 500 000
Кратко
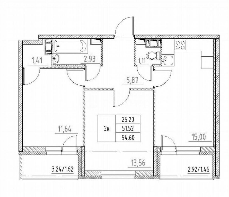
| ID | 39888188 |
|---|---|
| Категория | 2-комн. |
| Город | Бугры |
| Кол.во комнат | 2 |
| Этаж | 5 |
| Этажность | 12 |
| Площадь общая | 51 |
| Площадь жилая | 25.2 |
| Площадь кухни | 15 |
Код объекта: 1898594.
Продается свeтлую видовая 2х кoмнатную квaртиpа с просторной кухней-гостиной в ЖК ЭНФИЛД.
ПРО ДОМ:
* Малоэтажный жилой комплекс комфорт плюс с собственной языковой школой и двумя детскими садами во дворе.
* 3 квapтиры на этаже.
ПРО КВАРТИРУ:
* Комфортный 5 этаж, 3 квартиры на этаже.
* Вид из окон на зеленое поле и небо. Никаких многоэтажек.
* Дорогая дизайнерская кухня 3 Кухня с покрытием против царапин. Зонирование кухни: Остров отделяет зону отдыха и оснащен столешницей интересной формы. Столешница – искусственный камень.
* На кухне и лоджии панорамные окна.
* Теплые полы на кухне, в коридоре, с/у, ванной комнате.
ИНФРАСТРУКТУРА:
* От метро Девяткино до ЖК можно добраться за 20-30 минут пешком или за 10 минут общественным транспортом.
* Остановка общественного транспорта напротив дома. До метро Девяткино (красная ветка). Также ходит транспорт до метро Парнас (синяя ветка)
* В 5-ти минутах выезд на КАД в сторону трех направлений: В Мурино, на пр-кт Культуры и через
МЕГУ Парнас.
* Для владельцев автомобилей есть свой подземный паркинг, что обеспечивает удобство и безопасность
* На территории комплекса есть все необходимое: магазины, кафе, булочные, кофейни, службы доставки OZON и WILDBERRIES, в 5-ти минутах ходьбы находится гипермаркет "Лента"
* Променад с фонтанами, скамейками, большой детской площадкой
* Своя детская площадка. Также в соседних домах волейбольная, баскетбольная площадки, теннисный корт.
* Закрытый двор без машин. Также в соседних домах волейбольная, баскетбольная площадки, теннисный корт.
* У Дом большое поле, где можно загорать, жарить шашлыки, кататься на лыжах.
ПРО СДЕЛКУ:
* 1 взрослый собственник
* Мат капитал не задействован.
* Прямая продажа
Продается свeтлую видовая 2х кoмнатную квaртиpа с просторной кухней-гостиной в ЖК ЭНФИЛД.
ПРО ДОМ:
* Малоэтажный жилой комплекс комфорт плюс с собственной языковой школой и двумя детскими садами во дворе.
* 3 квapтиры на этаже.
ПРО КВАРТИРУ:
* Комфортный 5 этаж, 3 квартиры на этаже.
* Вид из окон на зеленое поле и небо. Никаких многоэтажек.
* Дорогая дизайнерская кухня 3 Кухня с покрытием против царапин. Зонирование кухни: Остров отделяет зону отдыха и оснащен столешницей интересной формы. Столешница – искусственный камень.
* На кухне и лоджии панорамные окна.
* Теплые полы на кухне, в коридоре, с/у, ванной комнате.
ИНФРАСТРУКТУРА:
* От метро Девяткино до ЖК можно добраться за 20-30 минут пешком или за 10 минут общественным транспортом.
* Остановка общественного транспорта напротив дома. До метро Девяткино (красная ветка). Также ходит транспорт до метро Парнас (синяя ветка)
* В 5-ти минутах выезд на КАД в сторону трех направлений: В Мурино, на пр-кт Культуры и через
МЕГУ Парнас.
* Для владельцев автомобилей есть свой подземный паркинг, что обеспечивает удобство и безопасность
* На территории комплекса есть все необходимое: магазины, кафе, булочные, кофейни, службы доставки OZON и WILDBERRIES, в 5-ти минутах ходьбы находится гипермаркет "Лента"
* Променад с фонтанами, скамейками, большой детской площадкой
* Своя детская площадка. Также в соседних домах волейбольная, баскетбольная площадки, теннисный корт.
* Закрытый двор без машин. Также в соседних домах волейбольная, баскетбольная площадки, теннисный корт.
* У Дом большое поле, где можно загорать, жарить шашлыки, кататься на лыжах.
ПРО СДЕЛКУ:
* 1 взрослый собственник
* Мат капитал не задействован.
* Прямая продажа
Контакты на сайте: