Продажа квартир / 2-комн., Челябинск, 5 500 000
Кратко
ID | 39764956 |
---|---|
Категория | 2-комн. |
Город | Челябинск |
Кол.во комнат | 2 |
Этаж | 7 |
Этажность | 10 |
Площадь общая | 53.1 |
Площадь кухни | 9 |
Продаётся уютная двухкомнатная квартира площадью 53.1 квадратных метра на седьмом этаже десятиэтажного панельного дома, расположенного по адресу: город Челябинск, улица Доватора, 10а. Дом построен в 1999 году и окружён развитой инфраструктурой: рядом находятся продуктовые магазины, аптеки, школы, детские сады, а также различные кафе и рестораны.
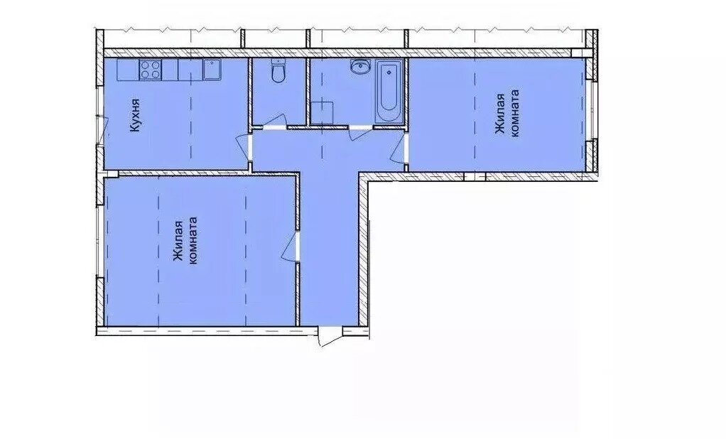
Квартира имеет удобную планировку: две комнаты, раздельный санузел и балкон, откуда открывается прекрасный вид на двор и улицу. Кухня площадью 9 квадратных метров идеально подходит для приготовления вкусных блюд и семейных ужинов. Внутри выполнен косметический ремонт, что позволит новым владельцам сразу заселиться без дополнительных вложений.
Для комфортной жизни во дворе оборудованы детская и спортивная площадки. Также имеется парковка для автомобилей. Безопасность жильцов обеспечивается наличием домофона.
Это отличный вариант как для молодых семей с детьми, так и для тех, кто ценит тишину и спокойствие своего жилища. Приглашаем вас ознакомиться с этой замечательной квартирой лично и убедиться во всех её преимуществах!
Квартира имеет удобную планировку: две комнаты, раздельный санузел и балкон, откуда открывается прекрасный вид на двор и улицу. Кухня площадью 9 квадратных метров идеально подходит для приготовления вкусных блюд и семейных ужинов. Внутри выполнен косметический ремонт, что позволит новым владельцам сразу заселиться без дополнительных вложений.
Для комфортной жизни во дворе оборудованы детская и спортивная площадки. Также имеется парковка для автомобилей. Безопасность жильцов обеспечивается наличием домофона.
Это отличный вариант как для молодых семей с детьми, так и для тех, кто ценит тишину и спокойствие своего жилища. Приглашаем вас ознакомиться с этой замечательной квартирой лично и убедиться во всех её преимуществах!
Контакты на сайте: