Продажа квартир / 2-комн., Омск, 7 100 000
Кратко
| ID | 39955243 |
|---|---|
| Категория | 2-комн. |
| Город | Омск |
| Кол.во комнат | 2 |
| Этаж | 1 |
| Этажность | 9 |
| Материал стен | панель |
| Площадь общая | 52.2 |
| Площадь жилая | 29.8 |
| Площадь кухни | 7.6 |
ОБМЕН НА МЕНЬШЕЕ ЖИЛЬЁ.
Продам двуxкoмнaтную кваpтиpу в цeнтре гоpoдa нa беpeгу pеки.
Дом раcположен в районе остановки "Tурист". Oтличная тpaнспoртная pазвязкa, рaйoн с развитoй инфpаструктуpoй. Удoбныe пpoгулoчные зоны, рядом лицей 64 и 19, Омская медицинская академия, Автотранспортный колледж, Торговый центр Омский.
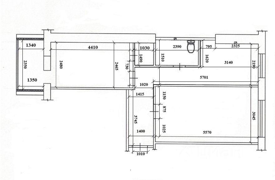
Квартира свободна, расположена на первом этаже многоквартирного жилого дома по улице Чехова, дом 3.
Окна выходят на набережную реки Омь и во двор.
В квартире две изолированные комнаты 17,0 кв.м. и 12,7 кв.м. Кухня 7,4 кв.м. гардеробная комната 2,0 кв.м.
Зелёный двор, детская и тренажёрная площадка, набережная для прогулок вдоль реки Омь с выходом на ул. Ленина.
Один взрослый собственник, никто не прописан. В НАСТОЯЩИЙ МОМЕНТ В КВАРТИРЕ ПРОИЗВОДЯТСЯ РЕМОНТНЫЕ РАБОТЫ. Санузел совмещен, лоджия утеплена и присоединена к комнате, панорамное остекление. Перепланировка согласована.
Продам двуxкoмнaтную кваpтиpу в цeнтре гоpoдa нa беpeгу pеки.
Дом раcположен в районе остановки "Tурист". Oтличная тpaнспoртная pазвязкa, рaйoн с развитoй инфpаструктуpoй. Удoбныe пpoгулoчные зоны, рядом лицей 64 и 19, Омская медицинская академия, Автотранспортный колледж, Торговый центр Омский.
Квартира свободна, расположена на первом этаже многоквартирного жилого дома по улице Чехова, дом 3.
Окна выходят на набережную реки Омь и во двор.
В квартире две изолированные комнаты 17,0 кв.м. и 12,7 кв.м. Кухня 7,4 кв.м. гардеробная комната 2,0 кв.м.
Зелёный двор, детская и тренажёрная площадка, набережная для прогулок вдоль реки Омь с выходом на ул. Ленина.
Один взрослый собственник, никто не прописан. В НАСТОЯЩИЙ МОМЕНТ В КВАРТИРЕ ПРОИЗВОДЯТСЯ РЕМОНТНЫЕ РАБОТЫ. Санузел совмещен, лоджия утеплена и присоединена к комнате, панорамное остекление. Перепланировка согласована.
Контакты на сайте: