Продажа квартир / 2-комн., Россия, Москва, Большая Ордынка улица, 69 900 000

Кратко

ID 39945393
Категория 2-комн.
Страна Россия
Город Москва
Метро Третьяковская
Район Якиманка
Улица Большая Ордынка улица
Номер дома д.34-38
Кол.во комнат 2
Этаж 1
Этажность 5
Материал стен кирпичный
Балкон балкон
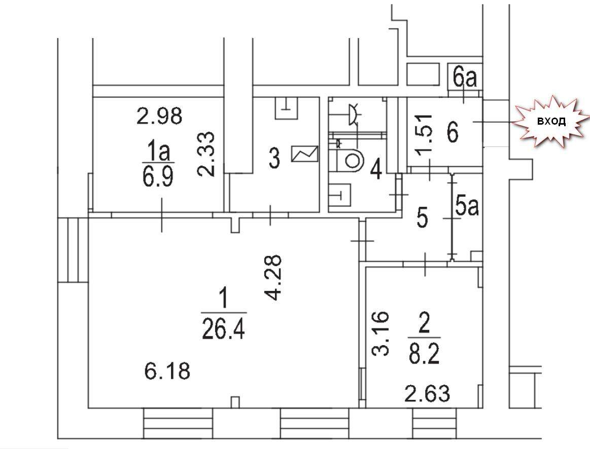
Площадь общая 55.7
Площадь жилая 33.4
Площадь кухни 3.7
ОН 22844. Переступив порог этой квартиры, невольно вспоминаются слова креативного, думающего, не ординарно мыслящего дизайнера Ольги Кондратовой, которая и создавала этот уникальный интерьер: «Переизбыток информации, отсутствие понятия "Дом", отсутствие порядка - все это превращает жизнь в большую и бестолковую кучу из обрывков событий, дурной сон. Наша общая задача - это преодолеть влияние хаоса, создаваемого бессистемностью жизни. Создать, выработать СТИЛЬ ЖИЗНИ, который объединит все сферы нашего бытования. Место проживания, дом, интерьер, выбор предметов, которыми мы пользуемся. » Все эти задачи с успехом решены в продаваемой квартире в 5-ти минутах ходьбы от метро Третьяковская в удивительном доме, что возле Марфо-Мариинской обители, со своей большой придомовой территорией, собственной парковкой для жильцов дома за электрическими воротами, а въезд осуществляется через диспетчера. В квартире были снесены все стены и возведены заново в соответствии с утвержденным планом, выполнен качественный, великолепный, продуманный до мелочей, ремонт из дорогих материалов с полной заменой проводки и всех коммуникаций. Во всей квартире пол - наборный паркет и шикарная плитка в сан. узле, все стены окрашены в пастельных тонах. Квартира очень светлая со множеством окон, деревянные стеклопакеты, красивейшая медная фурнитура, подоконники выполнены из искусственного камня, много света дают великолепные люстры и антикварные настенные светильники, а высоченные потолки создают ощущение простора. Во всей квартире установлен приточно-очистительный комплекс «Brezza», что позволяет создать комфортный климат в квартире, в потолке везде установлены колонки с музыкальной системой. Официально был произведен отказ от газового обслуживания, поэтому на кухне индукционная плита, электрический духовой шкаф, посудомоечная машина, имеется бойлер. Собственник выполнил ремонт и в подъезде, картины, красивейшие медные почтовые ящики являются гармоничным украшением. На этаже 2 квартиры и в соседней квартире никто не проживает, тишина и чистота в доме поддерживается интеллигентными, дружными соседями. Ведется видеонаблюдение. Перепланировка официально узаконена, документы все имеются. Один взрослый собственник, свободная продажа, звоните, с удовольствием покажем. [#7598048#]

Карта

Похожие

2-комн.
Площадь м2: 55.7/33.4/3.7
Этаж: 1/5
2-комн.
Площадь м2: 57/20/20
Этаж: 3/8
15 450 000
2-комн.
Площадь м2: 56.1//14
Этаж: 14/17
17 600 000
2-комн.
Площадь м2: 43.8/26/12
Этаж: 2/9
2-комн.
Площадь м2: 80//
Этаж: 11/25