Продажа квартир / 2-комн., Россия, Москва, Березовая аллея, 18 600 000

Кратко

ID 39887165
Категория 2-комн.
Страна Россия
Город Москва
Метро Ботанический сад
Район Останкинский
Улица Березовая аллея
Номер дома д.19к4
Кол.во комнат 2
Этаж 16
Этажность 18
Материал стен кирпично-монолитный
Балкон балкон
Площадь общая 72.9
Площадь жилая 24.72
Площадь кухни 33
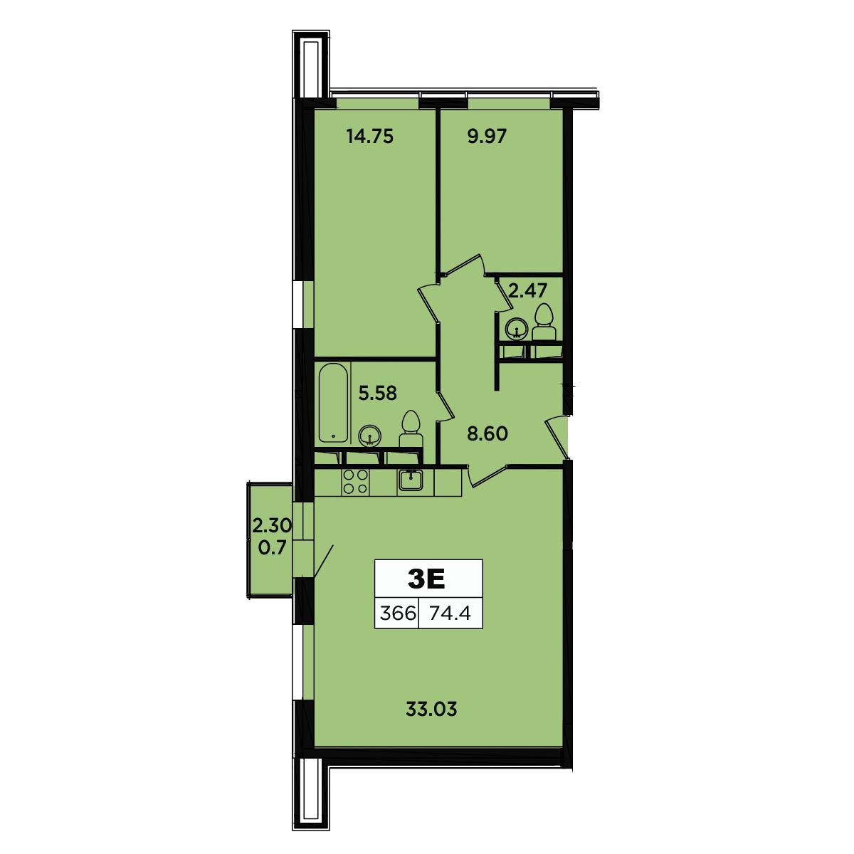
Квартира располагается на 16 этаже 18-этажного монолитного дома в ЖК Апарт-комплекс Легендарный квартал 2023 года постройки. Просторные апартаменты с окнами на две стороны света. Евротрешка общей площадью 73 м2. Без отделки. Лот 16-366. Удобная планировка: просторная кухня-гостиная 33 м2; спальни 10 м2 и 14,5 м2; холл 8,6 м2 — место под большой шкаф/гардероб; два санузла: 5,5 м2 (ванная) и 2,5 м2 (гостевой); балкон 2,30 м2. Высота потолков 4 м, инженерия и разводка — под ваш проект интерьера. Юридически: статус апартаментов, быстрый выход на сделку, ипотека возможна. Дом оборудован одним грузовым и 2 пассажирскими лифтами, закрытая территория. Подземная парковка, есть гостевые парковочные места, парковка охраняемая. О комплексе «Легендарный квартал» Современный комплекс апартаментов на Берёзовой аллее. Закрытый охраняемый периметр, видео-наблюдение 24/7, контроль доступа. Детские и спортивные площадки. Подземный паркинг, колясочные/велопарковки На первых этажах — кафе, пекарни, маркет, услуги, рядом фитнес и сервисы для жизни. Удобные выезды на МСД и на проспект Мира. До м. Ботанический сад - 15 минут пешком. Рядом ВДНХ. В шаговой доступности всё необходимое. Помощь в оформлении ипотеки. [#7680337#]

Карта

Похожие

2-комн.
Площадь м2: 72.9/24.72/33
Этаж: 16/18
2-комн.
Площадь м2: 50.5/30.02/9.66
Этаж: 9/17
2-комн.
Площадь м2: 50.4/29.81/9.71
Этаж: 9/18
2-комн.
Площадь м2: 49.8/29.1/9.81
Этаж: 15/18
2-комн.
Площадь м2: 48.3/28.6/10
Этаж: 3/18