Продажа квартир / 2-комн., Россия, Москва, Академика Королева улица, 59 956 000

Кратко

ID 39947080
Категория 2-комн.
Страна Россия
Город Москва
Метро ВДНХ
Улица Академика Королева улица
Номер дома д.13
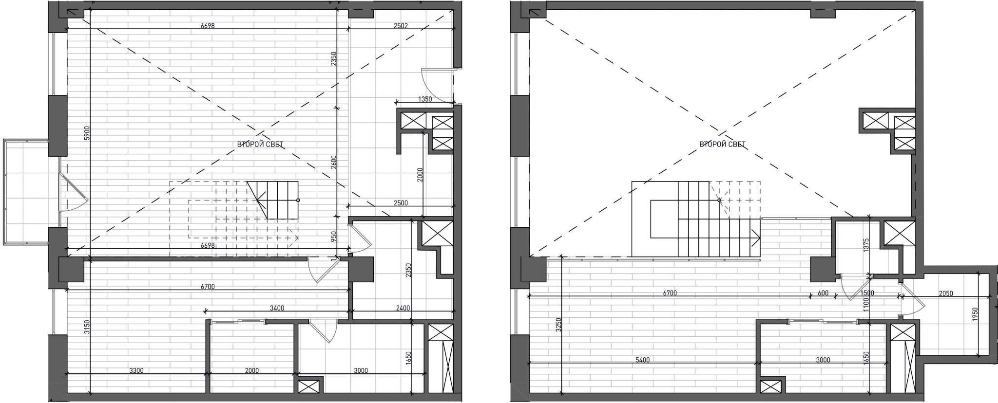
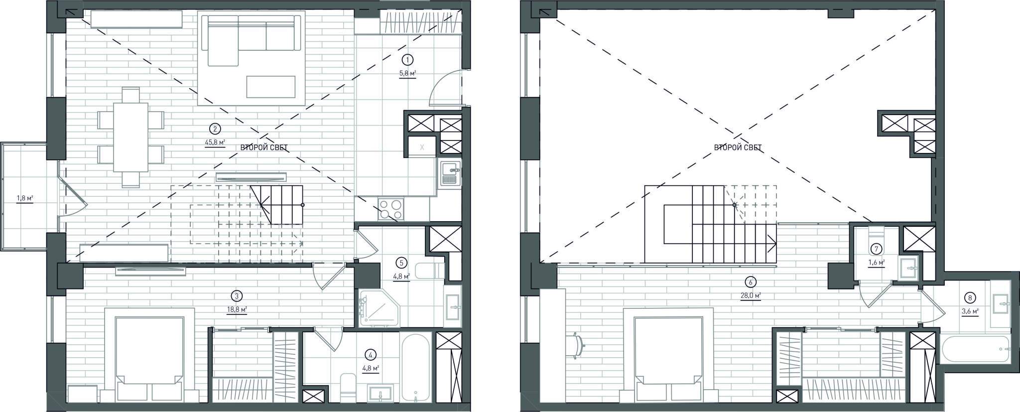
Кол.во комнат 2
Этаж 7
Этажность 8
Материал стен монолит
Балкон балкон
Площадь общая 115.3
Площадь жилая 46.8
Площадь кухни 45.8
Двухуровневые апартаменты со свободной планировкой. Лот без отделки. Вид из окон на парк и на Останкинскую телебашню (см. фото). Планировка 1 - предлагаемое планировочное решение: 2 спальни, кухня-гостиная, гардеробная, 4 сан. узла. Планировка 2 - проектное планировочное решение. Апарт-комплекс "Королева 13" от застройщика Патек Групп. Объект введен в эксплуатацию. Особенности и преимущества проекта: - обустроенная терраса на крыше дома - фитнес зал с бассейном для резидентов - механизированный паркинг на 47 мест - конференц-зал, коворкинг и кинозал на 2 этаже - игровая зона для детей - шаговая доступность до всех достопримечательностей, инфраструктуры района Останкино и станции метро ВДНХ Просмотры по договоренности. [#7424024#]

Карта

Похожие

2-комн.
Площадь м2: 115.3/46.8/45.8
Этаж: 7/8
2-комн.
Площадь м2: 66.4/29.9/18.3
Этаж: 2/8
2-комн.
Площадь м2: 57/20/20
Этаж: 3/8
15 450 000
2-комн.
Площадь м2: 56.1//14
Этаж: 14/17
17 600 000
2-комн.
Площадь м2: 43.8/26/12
Этаж: 2/9