Продажа квартир / 2-комн., Россия, Новосибирская область, Бердск, 30 лет Победы улица, 6 500 000

Кратко

ID 39947868
Категория 2-комн.
Страна Россия
Регион Новосибирская область
Город Бердск
Улица 30 лет Победы улица
Номер дома д.1
Кол.во комнат 2
Этаж 4
Этажность 5
Материал стен кирпичный
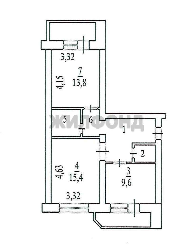
Площадь общая 62.2
Площадь жилая 29.2
Площадь кухни 9.6
Телефон
2 комн. квартира по ул. Новосибирская. Общей площадью: 62.20 кв.м. Продаётся уютная квартира улучшенной планировки в кирпичном доме классической кладки 2007 г постройки, в Новом Поселке города Бердск по адресу Новосибирская, дом 3. Общая площадь квартиры, с учетом площадей балкона и лоджии - 62,2м2 ( без учета - 55м2) , расположена на 4 этаже 5-этажного дома. Окна квартиры выходят на обе стороны дома. Из комнаты и кухни выход на застекленные и утепленные лоджию и балкон. Тихий двор обеспечивает спокойствие и уединение. В подъезде всегда чисто и аккуратно благодаря ответственным соседям. Квартира идеально подойдет для семьи или пары, которые ценят комфорт и уют. В ней предусмотрены две просторные комнаты, где можно разместить всю необходимую мебель и создать уютную обстановку. Кухонный гарнитур, встроенный шкаф в прихожей - остаются. В квартире выполнен качественный ремонт с использованием современных материалов. Стены и потолки выровнены, установлены новые окна и двери. На полу лежит линолеум, который легко моется и не требует особого ухода. В ванной комнате установлена современная сан. техника, а на кухне есть все необходимое для приготовления еды. Развитая инфраструктура района позволит Вам с комфортом проводить своё время. Рядом с домом расположены магазины, супермаркеты, аптеки, детский сад и школа. В шаговой доступности Ботанический сад, где можно прогуляться и насладиться свежим воздухом. Отличная транспортная доступность позволит быстро и легко добраться до любой точки Новосибирска, Академгородка, Бердска. Рядом с домом расположена остановка общественного транспорта, откуда можно уехать в любую часть города. Неподалеку ж. д станция. Документы проверены юристом, и готовы к сделке. Один взрослый собственник, нет прописанных. Приветствуется любая форма расчетов! Не упустите возможность приобрести просторную и уютную квартиру в прекрасном районе Бердска. Ключи в офисе, звоните прямо сейчас, организую просмотр в удобное для Вас время. Наша команда профессиональных агентов с радостью ответит на все Ваши вопросы и поможет сделать правильный выбор. Ждём вас! Рядом с объектом находятся: 1 школа, 2 детских сада, 2 продуктовых магазина, 1 спортивное учреждение. Возможен обмен на вашу недвижимость. Возможна продажа в рассрочку. При звонке, пожалуйста, сообщите номер варианта - JV002054175059 [#7728398#]

Карта

Похожие

2-комн.
Площадь м2: 62.2/29.2/9.6
Этаж: 4/5
2-комн.
Площадь м2: 42.8/27.3/6.6
Этаж: 4/9
2-комн.
Площадь м2: 55.1/29.5/10.7
Этаж: 6/6
2-комн.
Площадь м2: 47.4/27.6/10.4
Этаж: 4/4
2-комн.
Площадь м2: 51.2/24.7/8.8
Этаж: 7/9