Продажа квартир / 2-комн., Россия, Алтайский край, Барнаул, Юрина улица, 4 560 000

Кратко

ID 39851558
Категория 2-комн.
Страна Россия
Регион Алтайский край
Город Барнаул
Улица Юрина улица
Номер дома д.182
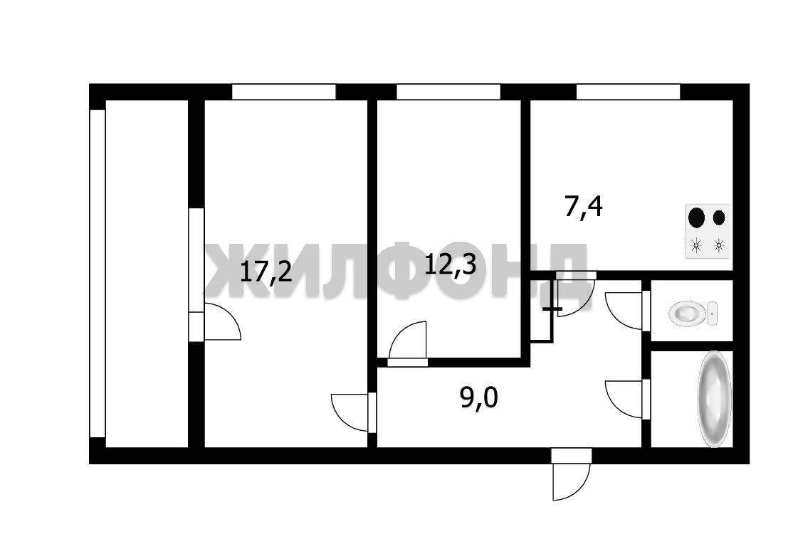
Кол.во комнат 2
Этаж 1
Этажность 10
Материал стен панельный
Балкон лоджия
Площадь общая 50.2
Площадь жилая 29.5
Площадь кухни 7.4
Телефон
2 комн. квартира по ул. Юрина. Общей площадью: 50.20 кв.м. ЦЕНА НИЖЕ РЫНКА! ! В продаже двухкомнатная квартира в районе кардиоцентра, удобная транспортная развязка, рядом детские сады, школы, поликлиника, парк Юбилейный. Большой двор с детской площадкой и достаточным количеством парковочных мест. Самая удобная 121 планировка, комнаты изолированы, что позволит с комфортом разместиться семьей. Состояние квартиры позволит воплотить все дизайнерские фантазии в ремонте по Вашему вкусу, и Вам не нужно переплачивать за чужой ремонт! Просторная лоджия дает возможность оборудовать кабинет или место отдыха, а также вместит зону хранения разных вещей. Чистый подъезд, хорошие соседи. 1 взрослый собственник, материнский капитал не использовался, без обременений и долгов. Документы готовы к сделке. Помогу одобрить ипотеку на лучших условиях. Подходит под все виды сертификатов. Записывайтесь на просмотр, покажем в удобное для Вас время. Измените жизнь к лучшему по бюджетной стоимости. Агентам бонус за покупателя! Возможен обмен на вашу недвижимость. Возможна продажа в рассрочку. При звонке, пожалуйста, сообщите номер варианта - JV002022120145. [#7361249#]

Карта

Похожие

2-комн.
Площадь м2: 44.4/33/5.4
Этаж: 1/5
2-комн.
Площадь м2: 50.2/29.5/7.4
Этаж: 1/10
2-комн.
Площадь м2: 49.9/29.5/7.4
Этаж: 10/10
2-комн.
Площадь м2: 36/25/5
Этаж: 1/16