Продажа квартир / 1-комн., Россия, Ярославская область, Ярославль, Мельничная улица, 5 052 000

Кратко

ID 39729647
Категория 1-комн.
Страна Россия
Регион Ярославская область
Город Ярославль
Улица Мельничная улица
Номер дома д.85
Кол.во комнат 1
Этаж 4
Этажность 4
Материал стен кирпичный
Балкон лоджия
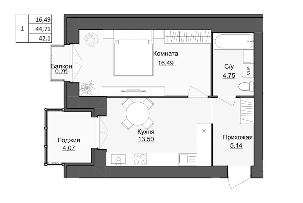
Площадь общая 44.71
Площадь жилая 16.49
Площадь кухни 13.5
Арт. 87564849. Продается современная однокомнатная квартира с комфортной планировкой в новом доме во Фрунзенском районе - самом перспективном и активно развивающемся районе города. О квартире: Индивидуальное газовое отопление: У вас свой газовый котел. Это значит независимость от сроков отопительного сезона и значительная экономия на коммунальных платежах. Вы сами регулируете температуру и платите только за реально потребленное тепло. Планировка: Удобная и продуманная. Высота потолков: 2,7 м. Отделка: Предчистовая (штукатурка, полусухая стяжка) . Окна: Пластиковые, от производителя Melke (пятикамерный профиль, двухкамерный стеклопакет) с высокими показателями теплоизоляции. Особенности: Панорамное остекление с выходом на лоджию, французский балкон. Коммуникации: Установлены счетчики на газ, воду и электроэнергию с дистанционной передачей данных. О доме и ЖК: Срок сдачи: 4 квартал 2025 года. Класс энергоэффективности: «В» (высокий) , что позволяет экономить на ЖКУ. Технологии: Система видеонаблюдения, домофон с Face ID. Территория: Огороженная, с современными детской и спортивной площадками. Тип дома: 4-этажный, один подъезд. Выгодное расположение: Транспорт: Отличная транспортная доступность. Инфраструктура: В шаговой доступности всё необходимое: детские сад "Непоседы", средняя школа № 16, ярославская школа № 45, поликлиники, ТЦ, Магазин Пятерочка, супермаркеты, аптеки, кафе и салоны красоты. Отдых: Рядом живописная набережная реки Которосль и пляж. Надежность застройщика: Опыт работы на рынке - более 10 лет. Успешно сдано более 10 жилых комплексов. Строительство ведется по 214-ФЗ с проектным финансированием от ПАО Сбербанк РФ. Квартира готова к быстрой и безопасной сделке. Помощь в ипотеке! Подберем лучшую программу. Пишите мне, чтобы запросить полный каталог планировок, актуальные цены и с удовольствием отвечу на все ваши вопросы! [#7476960#]

Карта

Похожие

1-комн.
Площадь м2: 44.42/18.59/10.28
Этаж: 2/4
1-комн.
Площадь м2: 44.71/16.49/13.5
Этаж: 2/4
1-комн.
Площадь м2: 44.71/16.49/13.5
Этаж: 4/4
1-комн.
Площадь м2: 48.72/15.27/15.83
Этаж: 2/4
1-комн.
Площадь м2: 42.01/14.65/13.52
Этаж: 2/4