Продажа квартир / 1-комн., Санкт-Петербург, 18 750 000
Кратко
ID | 39816983 |
---|---|
Категория | 1-комн. |
Город | Санкт-Петербург |
Кол.во комнат | 1 |
Этаж | 5 |
Этажность | 24 |
Материал стен | монолит |
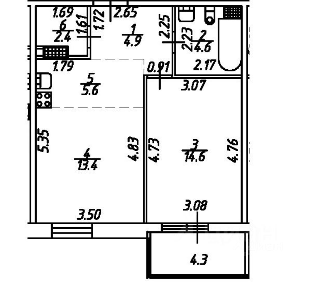
Площадь общая | 45.84 |
Площадь жилая | 14.7 |
Площадь кухни | 19 |
Продаётся уютная и светлая однокомнатная квартира площадью 45,84 кв.м на 5 этаже 24-этажного монолитного дома!
Что вас порадует:
- Высокие потолки 2,9 метра — ощущение простора;
- Изолированная спальня с кондиционером для комфортного отдыха;
- Просторная кухня-гостиная — идеально для готовки и семейных ужинов;
- Совмещённый санузел с качественным ремонтом и надежными материалами;
- Балкон с панорамным остеклением — отличное место для отдыха и свежего воздуха;
- Удобные зоны хранения, рациональное использование каждого метра.
Дом и район:
- Красивая парадная группа, закрытая территория с ландшафтным дизайном, фонтаном и зонами отдыха;
- Детские и спортплощадки, беговые дорожки, прогулочные аллеи;
- В пешей доступности — метро Ул. Дыбенко, остановки автобусов и трамваев;
- Рядом школы, детские сады, магазины, кафе и студии активности для всей семьи;
- Подземный паркинг на территории.
Условия сделки:
- Продажа без посредников от двух взрослых собственников (семейная пара);
- Ипотека возможна, есть обременение;
- Обсуждаем наличие техники и мебели;
- Готовы к разумному торгу.
Идеальный выбор для тех, кто хочет заехать сразу в комфортное, светлое и функциональное жильё с развитой инфраструктурой и удобной транспортной доступностью. Отличный вариант как для жизни, так и для инвестиций.
Звоните, договоримся о просмотрах и ответим на все вопросы!
Что вас порадует:
- Высокие потолки 2,9 метра — ощущение простора;
- Изолированная спальня с кондиционером для комфортного отдыха;
- Просторная кухня-гостиная — идеально для готовки и семейных ужинов;
- Совмещённый санузел с качественным ремонтом и надежными материалами;
- Балкон с панорамным остеклением — отличное место для отдыха и свежего воздуха;
- Удобные зоны хранения, рациональное использование каждого метра.
Дом и район:
- Красивая парадная группа, закрытая территория с ландшафтным дизайном, фонтаном и зонами отдыха;
- Детские и спортплощадки, беговые дорожки, прогулочные аллеи;
- В пешей доступности — метро Ул. Дыбенко, остановки автобусов и трамваев;
- Рядом школы, детские сады, магазины, кафе и студии активности для всей семьи;
- Подземный паркинг на территории.
Условия сделки:
- Продажа без посредников от двух взрослых собственников (семейная пара);
- Ипотека возможна, есть обременение;
- Обсуждаем наличие техники и мебели;
- Готовы к разумному торгу.
Идеальный выбор для тех, кто хочет заехать сразу в комфортное, светлое и функциональное жильё с развитой инфраструктурой и удобной транспортной доступностью. Отличный вариант как для жизни, так и для инвестиций.
Звоните, договоримся о просмотрах и ответим на все вопросы!
Контакты на сайте:
Карта
Похожие
1-комн.
Площадь м2:
37.4/19.4/10.2
Этаж:
15/18
21 500 000
1-комн.
Площадь м2:
46.6/24/12.3
Этаж:
10/15