Продажа квартир / 1-комн., Сертолово, 7 845 030
Кратко
| ID | 39815447 |
|---|---|
| Категория | 1-комн. |
| Город | Сертолово |
| Кол.во комнат | 1 |
| Этаж | 3 |
| Этажность | 8 |
| Площадь общая | 37.5 |
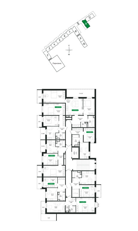
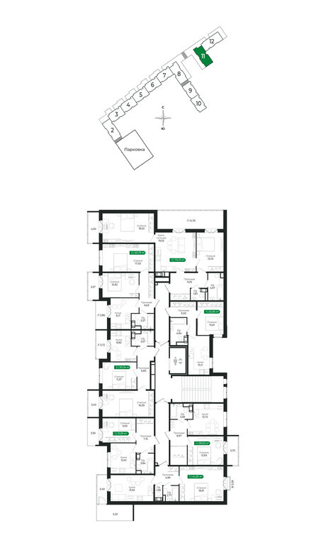
Напрямую продаётся уютная 1-комнатная квартира №343 общей площадью 39,03 м2 во II очереди в жилом комплексе Сертолово Парк от застройщика ГК Алгоритм.
✅ Все квартиры сдаются с чистовой отделкой в природных тонах. Пусть ваш дом будет теплым и уютным.
✅ Энергосберегающий дом строится по финским технологиям: наружные стены изготовлены из заводских трехслойных железобетонных панелей толщиной 390 мм, фасады утеплены - толщина утеплителя 150 мм - и закрыты декоративным слоем, толщина 90 мм.
✅ Увеличенные оконные проемы и потолки высотой 2,74 м придают квартирам в ЖК Сертолово Парк ощущение простора, обеспечивая максимальное естественное освещение и свежий воздух.
✅ Расположение ЖК: идеальное место для комфортной жизни в городе Сертолово. ЖК Сертолово Парк окружен прекрасным лесным массивом, что создает уникальную атмосферу спокойствия и природной красоты прямо за порогом вашего дома.
✅ Для детей и взрослых на территории ЖК имеются детские и спортивные площадки. Кроме того, чтобы обеспечить безопасность и уединенность, территория жилого комплекса полностью закрыта. А двор без машин обеспечит спокойствие для родителей и безопасность для детей..
✅ Все квартиры сдаются с чистовой отделкой в природных тонах. Пусть ваш дом будет теплым и уютным.
✅ Энергосберегающий дом строится по финским технологиям: наружные стены изготовлены из заводских трехслойных железобетонных панелей толщиной 390 мм, фасады утеплены - толщина утеплителя 150 мм - и закрыты декоративным слоем, толщина 90 мм.
✅ Увеличенные оконные проемы и потолки высотой 2,74 м придают квартирам в ЖК Сертолово Парк ощущение простора, обеспечивая максимальное естественное освещение и свежий воздух.
✅ Расположение ЖК: идеальное место для комфортной жизни в городе Сертолово. ЖК Сертолово Парк окружен прекрасным лесным массивом, что создает уникальную атмосферу спокойствия и природной красоты прямо за порогом вашего дома.
✅ Для детей и взрослых на территории ЖК имеются детские и спортивные площадки. Кроме того, чтобы обеспечить безопасность и уединенность, территория жилого комплекса полностью закрыта. А двор без машин обеспечит спокойствие для родителей и безопасность для детей..
Контакты на сайте: