Продажа квартир / 1-комн., Россия, Новосибирская область, Новосибирск, Федора Горячева улица, 4 200 000

Кратко

ID 39880337
Категория 1-комн.
Страна Россия
Регион Новосибирская область
Город Новосибирск
Метро Студенческая
Улица Федора Горячева улица
Номер дома д.63
Кол.во комнат 1
Этаж 3
Этажность 4
Материал стен кирпичный
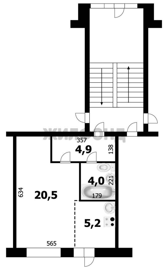
Площадь общая 34.5
Площадь жилая 20.5
Площадь кухни 5
Телефон
1 комн. квартира по ул. Федора Горячева. Общей площадью: 34.50 кв.м. Дом с собственным озером, расположен в парковой зоне. Малоэтажные дома. Тинина красота и пенье птиц. Квартира в отличном состоянии, сделан качественный ремонт. Все коммуникации новые, установлены счетчики на воду и электричество. Окна выходят на тихий двор, что обеспечивает спокойную атмосферу внутри квартиры. Инфраструктура района очень развита. В шаговой доступности расположены детские сады, школы, магазины, аптеки, банки. Также рядом с домом есть остановки общественного транспорта, что позволяет быстро добраться до любой точки города. Не упустите возможность стать счастливым обладателем уютной квартиры в престижном районе Новосибирска. Звоните и приезжайте на просмотр уже сегодня! Возможен обмен на вашу недвижимость. Возможна продажа в рассрочку. При звонке, пожалуйста, сообщите номер варианта - JV010541103979 [#7664166#]

Карта

Похожие

1-комн.
Площадь м2: 34.5/20.5/5
Этаж: 3/4
1-комн.
Площадь м2: 37.8/15/8
Этаж: 4/17
1-комн.
Площадь м2: 43/19.7/13.5
Этаж: 1/25
1-комн.
Площадь м2: 22.2/13/3
Этаж: 14/18