Продажа квартир / 1-комн., Россия, Калининградская область, Калининград, Левитана улица, 4 510 000

Кратко

ID 39885715
Категория 1-комн.
Страна Россия
Регион Калининградская область
Город Калининград
Улица Левитана улица
Номер дома д.61
Кол.во комнат 1
Этаж 3
Этажность 9
Материал стен панельный
Балкон балкон
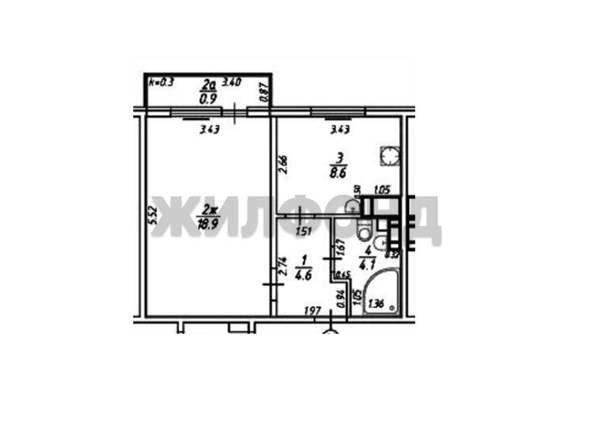
Площадь общая 36
Площадь жилая 19
Площадь кухни 9
Телефон
1 комн. квартира по ул. Левитана. Общей площадью: 36 кв.м. 1 комнатная квартира в тихом спальном районе. Светлая большая комната, просторная кухня, вместительный застекленный балкон, санузел с душевой кабиной, хороший вид из окна. В квартире сделан косметический ремонт. Мебель, техника, остаётся новым владельцам. Дом 2013 года постройки, панельный. Отопление центральное с индивидуальной регулировкой в квартире (теплосчетчики) . В микрорайоне детский сад, строится школа, супермаркет Sраr, Фасоль, аптеки, салоны красоты. Хорошая транспортная доступность. Несколько автобусных маршрутов. Звоните - записывайтесь на просмотр квартиры! Мы готовы обсуждать условия сделки. При звонке, пожалуйста, сообщите номер варианта - JV001039121759 [#7677420#]

Карта

Похожие

1-комн.
Площадь м2: 36/19/9
Этаж: 3/9
1-комн.
Площадь м2: 35/18/9
Этаж: 6/16
1-комн.
Площадь м2: 29.4//5.7
Этаж: 1/2
1-комн.
Площадь м2: 58,3/17,7/18,9
Этаж: 4/9