Коммерческая, Майкоп, 9 990 000
Кратко
| ID | 39914475 |
|---|---|
| Категория | Коммерческая |
| Город | Майкоп |
| Этаж | 1 |
| Этажность | 2 |
| Площадь общая | 200 |
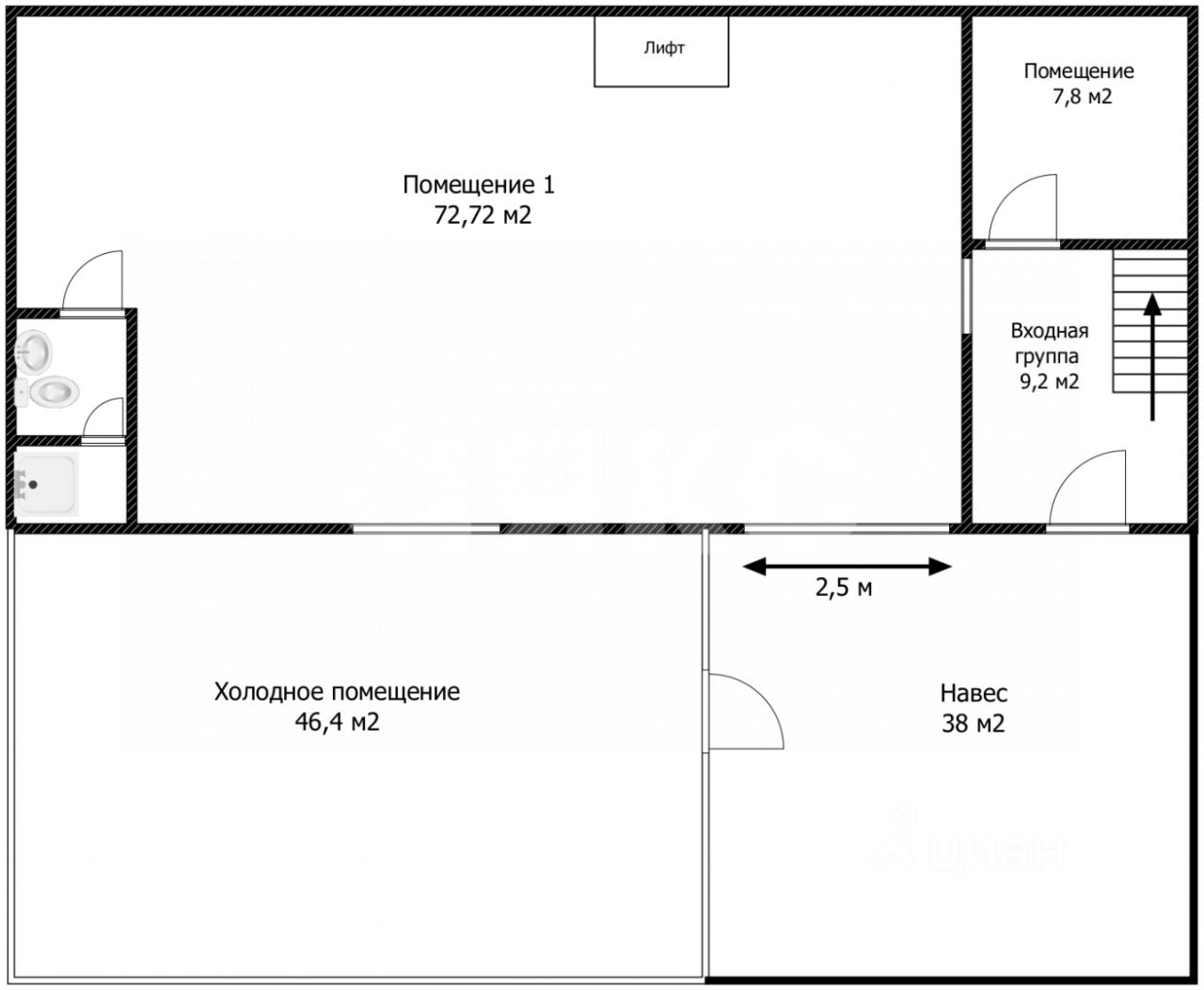
Продается производственное помещение в СКБ Точрадиомаш.
Двухэтажное здание площадью 200 кв. метров
с пристройкой в размере 46 кв. метров,
навесом 38 кв. метров и
собственный огороженный земельный участок 4 сотки.
Имеется промышленный лифт грузоподъемностью 100 кг..
В наличии есть 2 санузла с электрическим водонагревателем и душевой кабиной.
Имеется комната для отдыха персонала 8 кв. метров (на первом этаже), офисный кабинет директора с проведённым интернетом 8,8 кв. метров, кабинет в общем зале 10 кв. метров на втором этаже. Высота потолка на первом этаже 3,5 метра, на втором этаже 5,7 метров.
Водоснабжение и канализация центральные, газ проходит по фасаду с возможностью подключения. На данный момент помещение обогревает дровяная печь. Электричество 50 киловатт, по вашему желанию можно увеличить.
Земельный участок площадью 4 сотки с откатными воротами шириной 6 метров и отдельным входом.
Помещение использовалось для изготовления продукции из дерева.
Благодаря своему наполнению данный объект подходит для размещения на его территории производства дальнейшей продукции из дерева (станки на фото в стоимость не входят), либо оборудовать его под ваш бизнес проект (автосервис, склад и др.)
Звоните, ответим на все интересующие вопросы.
Арт. 49369637
Двухэтажное здание площадью 200 кв. метров
с пристройкой в размере 46 кв. метров,
навесом 38 кв. метров и
собственный огороженный земельный участок 4 сотки.
Имеется промышленный лифт грузоподъемностью 100 кг..
В наличии есть 2 санузла с электрическим водонагревателем и душевой кабиной.
Имеется комната для отдыха персонала 8 кв. метров (на первом этаже), офисный кабинет директора с проведённым интернетом 8,8 кв. метров, кабинет в общем зале 10 кв. метров на втором этаже. Высота потолка на первом этаже 3,5 метра, на втором этаже 5,7 метров.
Водоснабжение и канализация центральные, газ проходит по фасаду с возможностью подключения. На данный момент помещение обогревает дровяная печь. Электричество 50 киловатт, по вашему желанию можно увеличить.
Земельный участок площадью 4 сотки с откатными воротами шириной 6 метров и отдельным входом.
Помещение использовалось для изготовления продукции из дерева.
Благодаря своему наполнению данный объект подходит для размещения на его территории производства дальнейшей продукции из дерева (станки на фото в стоимость не входят), либо оборудовать его под ваш бизнес проект (автосервис, склад и др.)
Звоните, ответим на все интересующие вопросы.
Арт. 49369637
Контакты на сайте: