Коммерческая / Продажа / Торговые площади, Россия, Москва, Внуково район, 19 квартал, 194 777 330

Кратко

ID 39932416
Категория Торговые площади
Страна Россия
Регион Москва
Город Внуково район
Метро Пыхтино
Район Внуково
Улица 19 квартал
Номер дома д.1стр1
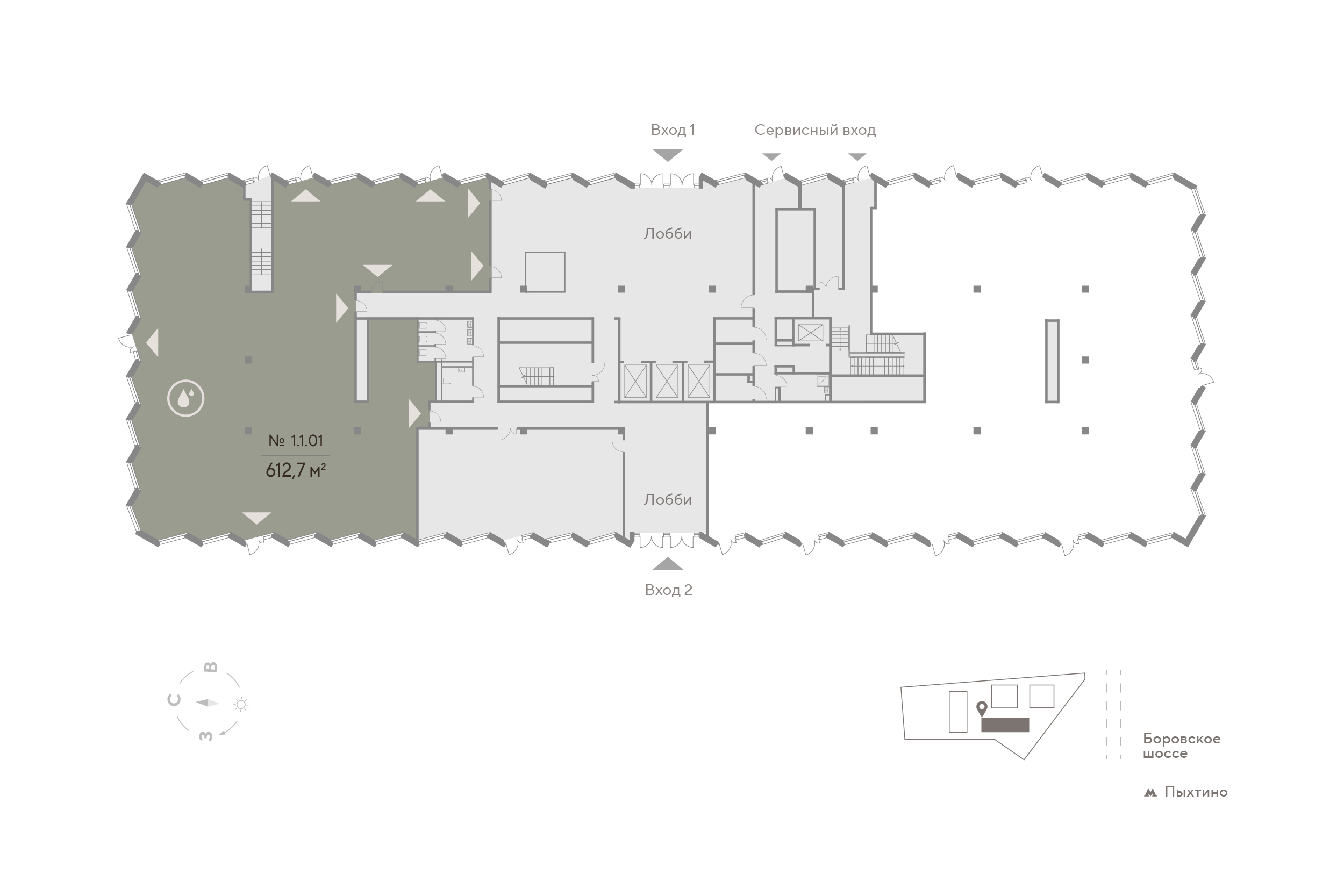
Этаж 1
Этажность 5
Площадь общая 612.7
Продажа торговых помещений в Бизнес-парке ПЕРЕДЕЛКИНО Предложение от застройщика! Рассрочка 0%. Возврат НДС. Комиссия брокерам - 3% При оплате 100% - скидки! ПЕРЕДЕЛКИНО — это современный камерный бизнес-парк класса A состоящий из четырех пятиэтажных зданий с панорамным остеклением, расположенный на территории Новой Москвы в окружении леса и активной жилой застройки. В непосредственной близости от основных транспортных магистралей - Боровское ш, Киевское ш, Минское ш, Можайское ш. - Первая линия Боровского шоссе - 10 минут пешком от м. Пыхтино - Открытая территория - Охрана 24/7 - Пешеходный бульвар с возможностью организации летних террас - Оптимальные площади для всех видов бизнеса Ввод в эксплуатацию - ноябрь 2025 г. Предлагается к продаже торговое помещение 612,7 м2 на 1 этаже - Витринное остекление по фасаду - Высота потолков 5,3 м - Отдельные входы с улицы и из лобби (9 независимых входов) - Наличие мест для размещения рекламных вывесок - Наличие мокрых точек. - Электрическая мощность до 200 Вт/м2 - Нагрузка на пол до 1 000 кг/м2 - Современная противопожарная система с оповещением Трафик - Резиденты бизнес-парка - Резиденты ЖК в шаговой доступности (более 21 000) и ближайшем окружение (более 67 000 чел.) Новая Москва. Новая деловая перспектива. Растущая дорожная сеть, строящиеся жилые комплексы, десятки тысяч крупных, средних и малых бизнесов - все это говорит о блестящих перспективах территории. Вы можете быть уверены, что делаете выгодную инвестицию. Более подробную информацию можно уточнить у менеджера по телефону. [#7748729#]

Карта

Похожие

Торговые площади
Площадь м2: 434.2//
Этаж: 1/5
Торговые площади
Площадь м2: 612.7//
Этаж: 1/5
Торговые площади
Площадь м2: 78.2//
Этаж: 1/13