Коммерческая / Продажа / Торговые площади, Санкт-Петербург, 44 000 000
Кратко
| ID | 39983538 |
|---|---|
| Категория | Торговые площади |
| Город | Санкт-Петербург |
| Этаж | 1 |
| Этажность | 5 |
| Площадь общая | 184 |
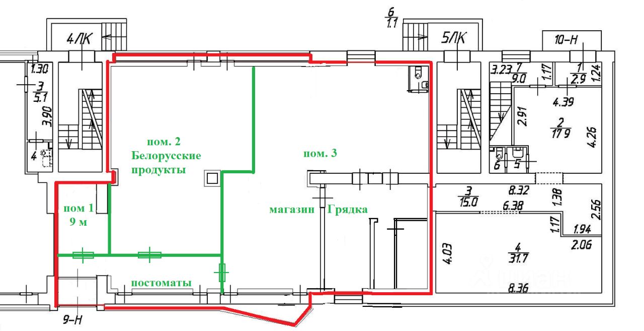
Отличное помещение 183,6 м на первой линии с огромными витринами.
Хорошая проходимость, помещение находится на местном променаде.
Потолки 4,1 м в основных залах и 2,3 м в подсобке.
Электричество официально 40 кВт.
Соседние помещения в доме занимают Магнит, Красное и Белое, Аптека.
Есть разгрузочное окно.
Сдано в аренду.
Агентам не беспокоить!
Хорошая проходимость, помещение находится на местном променаде.
Потолки 4,1 м в основных залах и 2,3 м в подсобке.
Электричество официально 40 кВт.
Соседние помещения в доме занимают Магнит, Красное и Белое, Аптека.
Есть разгрузочное окно.
Сдано в аренду.
Агентам не беспокоить!
Контакты на сайте:
Карта
Похожие
Торговые площади
Площадь м2:
81.8//
Этаж:
1/5
10 499 000
Торговые площади
Площадь м2:
51.1//
Этаж:
1/9