Коммерческая / Продажа / Торговые площади, Россия, Новосибирская область, Новосибирск, Кирова улица, 64 000 000

Кратко

ID 39843977
Категория Торговые площади
Страна Россия
Регион Новосибирская область
Город Новосибирск
Метро Октябрьская
Улица Кирова улица
Номер дома д.11
Этаж 1
Этажность 24
Площадь общая 236
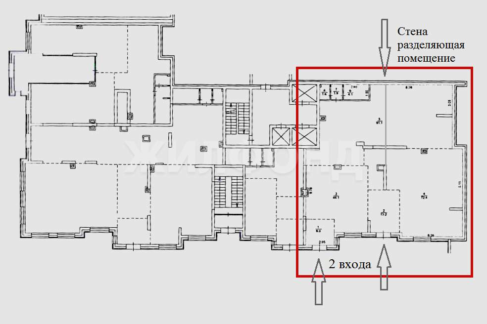
Торговое помещение по ул. Кирова. Общей площадью: 236 кв.м. Продам, отличное помещение свободного назначения, расположенное на первом этаже жк облака. помещение имеет два входа, имеется тамбур, окна с возможностью проветривания. в помещении произведён ремонт. пол керамогранит, стены частично окрашены. в данный момент помещение разделено на два, каждое с отдельным входом, площадью 120 м2 и 116 м2, в каждом есть туалет. высота потолков 3,8 метра. электрическая мощность 50 квт. предлагаемый объект расположен в активно развивающемся районе, в пешей доступности от станции метро октябрьская. развитая инфраструктура представлена государственными учреждениями, деловыми и торговыми комплексами, точками общественного питания. современный дом с благоустроенной территорией у входа, транспортная доступность и наличие парковочных мест делают данный объект удобным для сотрудников и клиентов компании. JC000020070398 [#7078020#]

Карта

Похожие

Торговые площади
Площадь м2: 236//
Этаж: 1/24
Торговые площади
Площадь м2: 73//
Этаж: 1/9
Торговые площади
Площадь м2: 233//
Этаж: 1/5
Торговые площади
Площадь м2: 75//
Этаж: 1/4
Торговые площади
Площадь м2: 60//
Этаж: 1/6