Коммерческая / Продажа / Офисы, Россия, Москва, Внуково район, 19 квартал, 51 744 960

Кратко

ID 39950462
Категория Офисы
Страна Россия
Регион Москва
Город Внуково район
Метро Пыхтино
Район Солнцево
Улица 19 квартал
Номер дома д.1стр1
Этаж 4
Этажность 5
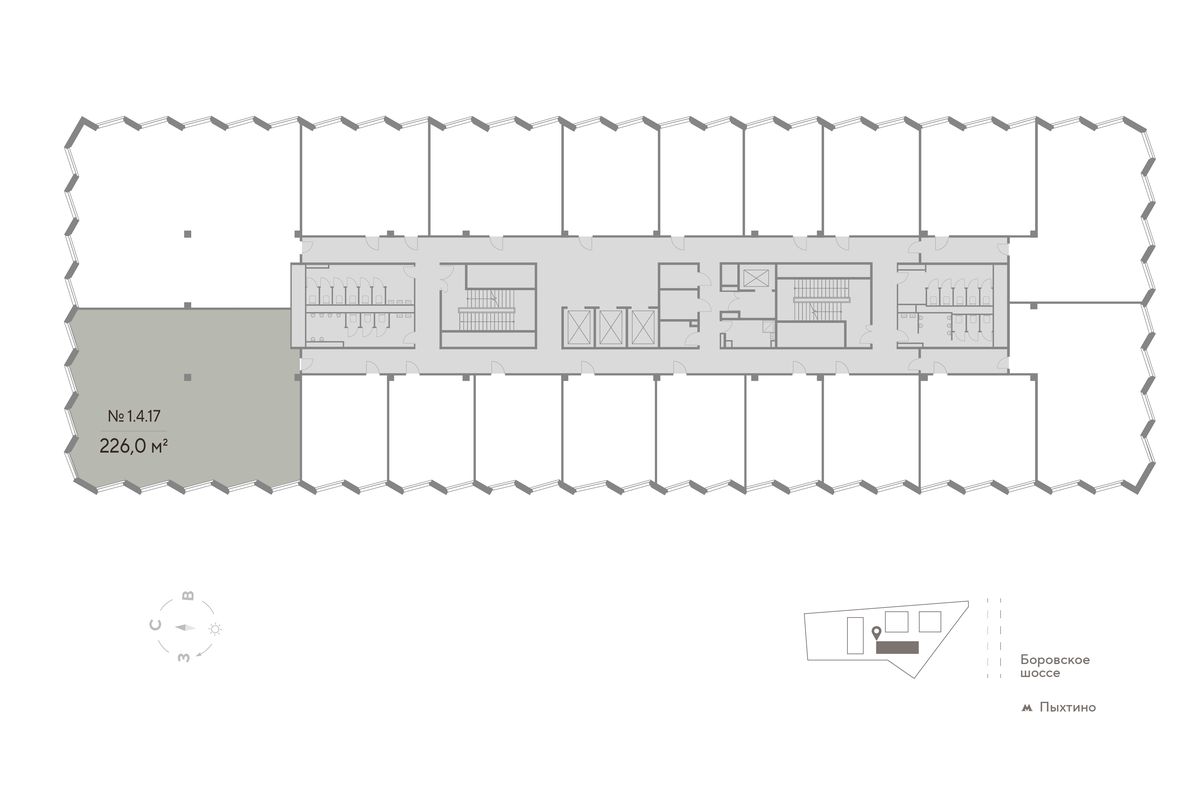
Площадь общая 226
Продажа офисов в Бизнес-парке ПЕРЕДЕЛКИНО Предложение от застройщика! Ввод в эксплуатацию III кв.2025 г. ПЕРЕДЕЛКИНО — это современный камерный бизнес-парк класса A из четырех пятиэтажных зданий с панорамным остеклением, расположенный на территории Новой Москвы в окружении леса и вблизи основных транспортных автомагистралей (Боровское ш, Киевское ш, Минское ш, Можайское ш) -Офисное помещение 226 м2 на 3 этаже (корпус 1) -Панорамное остекление -Отделка shell and core -Высота потолков 3,8 м -Шаг колонн 8,1 м * 8,4 м Транспортная доступность: -10 минут пешком от м. Пыхтино -9 км от МКАД -35 минут до центра Москвы Инфраструктура: -Благоустроенная территория с прилегающей лесополосой -Прогулочный бульвар с кафе и ресторанами -Природный коворкинг в окружении леса -На первых этажах офисных зданий просторные лобби с комфортной зоной ожидания, супермаркет, торговые помещения, отделения банков и сервисных служб, фитнес-студия -Охраняемый наземный паркинг -Зарядные станции для электромобилей Ближайшее окружение: -Парк Рассказовка -Горнолыжный склон Ново-Переделкино -Спорткомплекс Арктика -Дом творчества писателей Переделкино -Внуково Аутлет Вилладж -Рестораны Сыроварня, Кофемания, Библиотека Развитие Новой Москвы, растущая дорожная сеть, строящиеся жилые комплексы все это говорит о блестящих перспективах территории. У вас есть возможность получить высочайший уровень комфорта и сервиса. При этом, покупая небольшой офис или целое здание под штаб-квартиру компании, можете быть уверены, что делаете выгодную инвестицию. Более подробную информацию можно уточнить у менеджера по телефону. Все представленные проектные решения являются предварительными. [#7789836#]

Карта

Похожие

Офисы
Площадь м2: 226//
Этаж: 4/5
Офисы
Площадь м2: 58.9//
Этаж: 4/5
Офисы
Площадь м2: 1504//
Этаж: 3/5
Офисы
Площадь м2: 154.1//
Этаж: 2/5
Офисы
Площадь м2: 107.9//
Этаж: 2/5