Коммерческая / Продажа / Офисы, Россия, Приморский край, Владивосток, Днепровская улица, 110 000 000

Кратко

ID 39813946
Категория Офисы
Страна Россия
Регион Приморский край
Город Владивосток
Улица Днепровская улица
Номер дома д.83
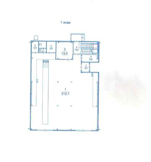
Этаж 1
Этажность 1
Площадь общая 551
Код лота: РАД-429952. Реализуется на торгах. Продается Готовый арендный бизнес склад с земельным участком во Владивостоке Расположение в районе с развитой инфраструктурой, рядом промышленная зона. Удобный доступ к основным магистралям обеспечивает эффективную логистику. Склад включает 3 нежилых помещения общей площадью 551 кв.м. Здание новое, не требует ремонта. Имущество и земельный участок также предлагаются в аренду. Состав лота - Земельный участок, кадастровый номер 25: 28: 040006: 22592, площадь 1910 кв. м - Нежилое помещение, кадастровый номер 25: 28: 040006: 23871, площадь 275,3 кв. м - Нежилое помещение, кадастровый номер 25: 28: 040006: 23872, площадь 25 кв. м - Нежилое помещение, кадастровый номер 25: 28: 040006: 23873, площадь 250,7 кв. м Условия аренды: - Долгосрочная аренда с 01.07.2025 на 3 года помещение 236,6 кв. м на 1 этаже и часть земельного участка. Использование экспертиза и испытания транспортных средств - Краткосрочная аренда до 31.03.2026 помещение 25 кв. м (антресоль первого этажа) для офиса Условия аукциона: Период приема заявок: 10.10.2025 24.11.2025 Время проведения Аукциона: 26.11.2025 в 08: 00 (МСК) Начальная цена: 110 000 000.00 руб. , без учета НДС (дополнительно уплачивается НДС в размере 20%) Задаток на участие в аукционе: 5 500 000.00 руб. Шаг аукциона на повышение: 1 100 000.00 руб. Более подробная информация о лоте размещена на электронной торговой площадке лот-онлайн. Код лота на ЭТП: РАД-429952 Ознакомление с предметом торгов осуществляется в рабочие дни по месту нахождения имущества, по предварительной записи. Контактное лицо Макаренко Кристина Дмитриевна. Лица, желающие ознакомиться с предметом торгов, должны иметь при себе документ, удостоверяющий личность, а также доверенность в случае ознакомления в качестве представителя физического или юридического лица. https: //catalog. lot-online. ru/index. php?dispatch=products. view&product_id=1346272 [#7595504#]

Карта

Похожие

Офисы
Площадь м2: 551//
Этаж: 1/1
Офисы
Площадь м2: 200//
Этаж: 8/24
Офисы
Площадь м2: 160//
Этаж: 0/12
Офисы
Площадь м2: 34//
Этаж: 3/12