Коммерческая / Продажа / Офисы, Россия, Приморский край, поселок городского типа Ольга, Ленинская улица, 74 609
Кратко
| ID | 39848080 |
|---|---|
| Категория | Офисы |
| Страна | Россия |
| Регион | Приморский край |
| Город | поселок городского типа Ольга |
| Улица | Ленинская улица |
| Номер дома | д.11 |
| Этаж | 1 |
| Этажность | 1 |
| Площадь общая | 164.7 |
Код лота: РАД-430692. Реализуется на торгах.
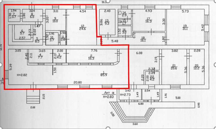
Аренда части нежилых помещений с учетом мест общего пользования площадью 164,7 кв. м, входящих в состав здания, расположенного по адресу: Приморский край, Ольгинский район, пгт. Ольга, ул. Ленинская, 11, помещения 1-22, площадью 295,7 кв. м, с кадастровым номером 25: 12: 030516: 540, этаж: первый. -В стоимость ежемесячной арендной платы не включены коммунальные расходы (водоснабжение, теплоснабжение, канализация и электроэнергия) . -Срок аренды: 60 (шестьдесят) месяцев с даты подписания Доверителем и Арендатором акта приема-передачи Объекта. -Передача Объекта по договору производится в срок не ранее 01.06.2026. Существуют ограничения по виду деятельности потенциальных арендаторов/субарендаторов. Исключена возможность заключения договорных отношений с организациями, занимающимися следующими направлениями: - микрофинансовые организации; - секс-шопы; - точки по продаже табачных изделий; - точки по продаже алкогольной продукции; - кальянные; - вейп-шопы; - представители оккультных наук; - банкам и другим финансовым организациям; Начальная цена ежемесячного платежа: 74 609 (Семьдесят четыре тысячи шестьсот девять) руб. 10 коп, в том числе НДС 20%. Сумма задатка: 74 609 (Семьдесят четыре тысячи шестьсот девять) руб. 00 коп. Шаг аукциона на повышение: 1 865 (Одна тысяча восемьсот шестьдесят пять) руб. 00 коп.
https: //catalog. lot-online. ru/index. php?dispatch=products. view&product_id=1397769 [#7632279#]