Коммерческая / Продажа / Офисы, Россия, Приморский край, поселок городского типа Ольга, Ленинская улица, 5 102 119
Кратко
| ID | 39848079 |
|---|---|
| Категория | Офисы |
| Страна | Россия |
| Регион | Приморский край |
| Город | поселок городского типа Ольга |
| Улица | Ленинская улица |
| Номер дома | д.11 |
| Этаж | 1 |
| Этажность | 1 |
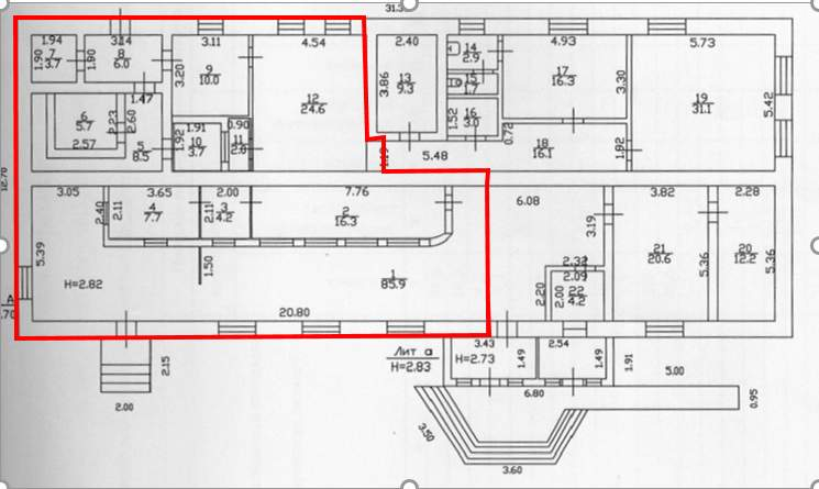
| Площадь общая | 164.7 |
Код лота: РАД-430691. Реализуется на торгах.
Часть нежилых помещений , общей площадью 164,7 кв. м, расположенное по адресу: Приморский край, Ольгинский р-н, Ольга пгт, Ленинская ул, дом 11; Доля в праве 7/25 (общая площадь 1350,0 кв. м) на ЗУ, общей площадью 1350 кв. м, расположенный по адресу: Приморский край, Ольгинский р-н, Ольга пгт, Ленинская ул, дом 11 Передача Объекта по договору производится в срок не ранее 01.06.2026, по итогам постановки объекта на кадастровый учет путем образования объекта в результате проведения кадастровых работ по выделению объекта из здания общей площадью 295,7 кв. м, кадастровый номер 25: 12: 030516: 540, но не ранее поступления на счет Банка в полном объеме денежных средств в оплату стоимости Объекта. Начальная цена: 5 102 119 (Пять миллионов сто две тысячи сто девятнадцать) руб. 00 коп, с учетом НДС 20% Сумма задатка: 102 042 (Сто две тысячи сорок два) руб. 00 коп. Шаг аукциона на повышение: 51 021 (Пятьдесят одна тысяча двадцать один) руб. 00 коп.
https: //catalog. lot-online. ru/index. php?dispatch=products. view&product_id=1397698 [#7632277#]