Коммерческая / Продажа / Офисы, Россия, Приморский край, поселок городского типа Ольга, Ленинская улица, 9 100 000
Кратко
| ID | 39848081 |
|---|---|
| Категория | Офисы |
| Страна | Россия |
| Регион | Приморский край |
| Город | поселок городского типа Ольга |
| Улица | Ленинская улица |
| Номер дома | д.11 |
| Этаж | 1 |
| Этажность | 1 |
| Площадь общая | 295.7 |
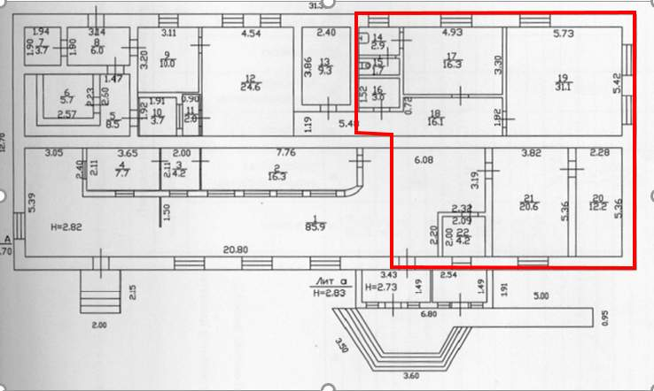
Код лота: РАД-430693. Реализуется на торгах.
Нежилые помещения, общей площадью 295,7 кв. м, расположенное по адресу: Приморский край, Ольгинский р-н, Ольга пгт, Ленинская ул, дом 11; Доля в праве 12/25 (общая площадь 1350,0 кв. м) на ЗУ, расположенный по адресу: Приморский край, Ольгинский р-н, Ольга пгт, Ленинская ул, дом 11. : Обязательным условием реализации является заключение договора аренды с Продавцом (Банком) на часть помещений: Параметры последующей аренды Заказчиком части Объекта после его продажи: - площадь обратной аренды 119,16 кв. м. , (схема помещений прилагается) ; - ставка обратной аренды составляет (рублей за 1 кв. м. в год, включая НДС) : 5 436,0 (Пять тысяч четыреста тридцать шесть) рублей 00 копеек. Ставка аренды включает в себя платежи за пользование помещением и соответствующей частью земельного участка пропорционально занимаемой площади, в том числе плату за услуги по эксплуатации и техническому обслуживанию систем жизнеобеспечения здания, размещение фасадной вывески, уборку мест общего пользования и прилегающей территории, вывоз и уборку снега; - коммунальные услуги (пользование электроэнергией, водо-, теплоснабжением и канализацией) оплачиваются Арендатором отдельно на основании показаний счетчиков и платежных документов, выставленных снабжающими и обслуживающими организациями по действующим тарифам и нормативам, без каких-либо дополнительных начислений со стороны Арендодателя; - срок аренды не менее 10 лет с возможностью досрочного расторжения в одностороннем внесудебном порядке по требованию арендатора (Заказчика) при условии письменного уведомления арендодателя (Покупателя) не позднее, чем за 2 месяца до даты расторжения договора, без применения арендодателем (Покупателем) штрафных санкций; - индексация арендной платы по соглашению сторон не чаще одного раза в год, начиная с третьего года срока аренды, согласно индексу потребительских цен по соответствующему субъекту РФ за прошедшие 12 (двенадцать) месяцев аренды, публикуемому на официальном сайте Федеральной службы государственной статистики Российской Федерации www. gks. ru, но не более чем на 5 %. - отлагательные условия по подписанию Акта приема передачи Объекта не ранее 01.06.2026; - площадь аренды может быть изменена в одностороннем внесудебном порядке по требованию Арендатора при условии письменного уведомления Арендодателя не позднее, чем за 2 (два) месяца, без применения Арендодателем штрафных санкций; - отсутствие права Арендодателя на одностороннее внесудебное досрочное расторжение договора при отсутствии нарушений обязательств со стороны Арендатора. Передача Объекта по договору производится в срок не позднее 01.06.2026, но не ранее поступления на счет Банка в полном объеме денежных средств в оплату стоимости Объекта. Начальная цена: 9 100 000 (Девять миллионов сто тысяч) руб. 00 коп, с учетом НДС 20%. Сумма задатка: 182 000 (Сто восемьдесят две тысячи) руб. 00 копеек. Шаг аукциона на повышение: 91 000 (Девяносто одна тысяча) руб. 00 копеек. [#7632281#]