Коммерческая / Продажа / Офисы, Россия, Москва, 19 квартал, 17 689 437

Кратко

ID 39932420
Категория Офисы
Страна Россия
Город Москва
Метро Пыхтино
Район Солнцево
Улица 19 квартал
Номер дома д.1стр1
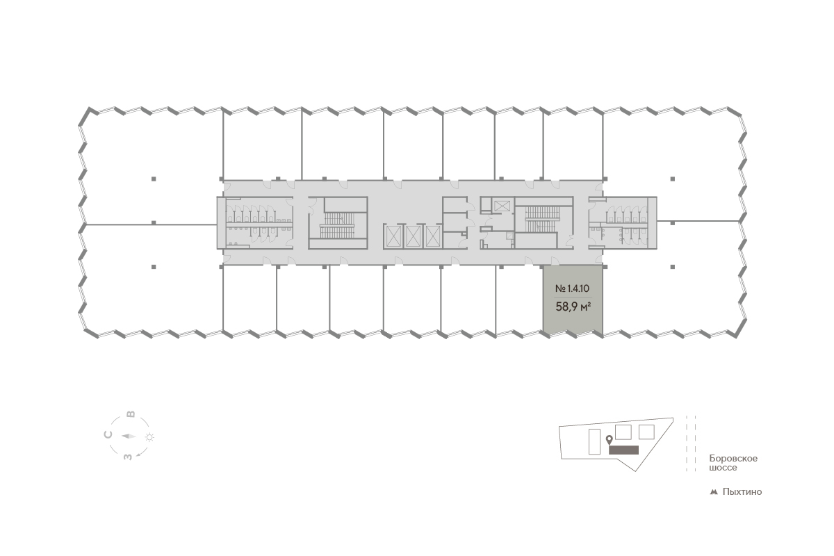
Этаж 4
Этажность 5
Площадь общая 58.9
Акция: скидка до 30.11.2025 Комиссия брокерам Продажа офисов в Бизнес-парке ПЕРЕДЕЛКИНО Предложение от застройщика! Ввод в эксплуатацию III кв.2025 г. ПЕРЕДЕЛКИНО — это современный камерный бизнес-парк класса A из четырех пятиэтажных зданий с панорамным остеклением, расположенный на территории Новой Москвы в окружении леса и вблизи основных транспортных автомагистралей (Боровское ш, Киевское ш, Минское ш, Можайское ш) - Офисное помещение 58,9 м2 на 4 этаже (корпус 1) - Панорамное остекление - Отделка shell and core - Высота потолков 3,8 м - Шаг колонн 8,1 м * 8,4 м Транспортная доступность: - 10 минут пешком от м. Пыхтино - 9 км от МКАД - 35 минут до центра Москвы Инфраструктура: - Благоустроенная территория с прилегающей лесополосой - Прогулочный бульвар с кафе и ресторанами - Природный коворкинг в окружении леса - На первых этажах офисных зданий просторные лобби с комфортной зоной ожидания, супермаркет, торговые помещения, отделения банков и сервисных служб, фитнес-студия - Охраняемый наземный паркинг - Зарядные станции для электромобилей Ближайшее окружение: - Парк Рассказовка - Горнолыжный склон Ново-Переделкино - Спорткомплекс Арктика - Дом творчества писателей Переделкино - Внуково Аутлет Вилладж - Рестораны Сыроварня, Кофемания, Библиотека Развитие Новой Москвы, растущая дорожная сеть, строящиеся жилые комплексы все это говорит о блестящих перспективах территории. У вас есть возможность получить высочайший уровень комфорта и сервиса. При этом, покупая небольшой офис или целое здание под штаб-квартиру компании, можете быть уверены, что делаете выгодную инвестицию. Более подробную информацию можно уточнить у менеджера по телефону. Все представленные проектные решения являются предварительными. [#7749023#]

Карта

Похожие

Офисы
Площадь м2: 107.9//
Этаж: 2/5
Офисы
Площадь м2: 58.9//
Этаж: 4/5
Офисы
Площадь м2: 73.92//
Этаж: 5/29
Офисы
Площадь м2: 276.07//
Этаж: 8/33
Офисы
Площадь м2: 255.5//
Этаж: 21/33