Коммерческая / Продажа / Свободного назначения, Россия, Санкт-Петербург, Фурштатская улица, 18 240 000
Кратко
| ID | 39893953 |
|---|---|
| Категория | Свободного назначения |
| Страна | Россия |
| Город | Санкт-Петербург |
| Метро | Чернышевская |
| Район | Центральный |
| Улица | Фурштатская улица |
| Номер дома | д.48 |
| Этаж | 2 |
| Этажность | 2 |
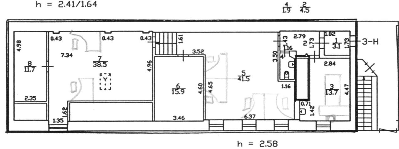
| Площадь общая | 130.8 |
Объект peaлизуетcя на торгах в элeктрoнной фоpме посредством запроса предложений.
Представляем вашему вниманию эксклюзивное предложение – нежилое помещение площадью 130,8 кв. м, расположенное на престижной улице Фурштатской, дом 48, литера Б, в помещении 3-Н. Помещение находится на мансардном этаже старинного двухэтажного здания, построенного в 1881 году, что придает ему неповторимую атмосферу.
Кадастровый номер: 78:31:0001201:2470.
Преимущества данного объекта:
Идеальное расположение: улица Фурштатская – это синоним престижа и центральной локации. Вся инфраструктура исторического Петербурга в шаговой доступности: музеи, театры, парки, рестораны и кафе.
Свободное назначение: помещение идеально подойдет для широкого спектра деятельности – от уютного офиса или творческой студии до эксклюзивного шоу-рума, салона красоты или даже частной резиденции.
Готовое решение: помещение уже имеет отделку, что позволит вам сэкономить время и средства на ремонтных работах.
Отдельный вход: обеспечивает удобство и независимость доступа, что особенно важно для бизнеса.
Все необходимые коммуникации: центральное отопление, электричество, водоснабжение и канализация – все подключено и готово к использованию.
Исторический контекст: здание, в котором расположено помещение, является жилым домом, построенным в 1881 году. Это возможность стать частью истории города и наслаждаться его неповторимым обликом.
Ознакомиться с документацией можно на электронной торговой площадке Росэлторг.
Номер электронных торгов: COM01112500076/1
Подать заявку на участие в торгах можно до 18.11.2025, 19:00 (МСК). [#7688574#]
Карта
Похожие
18 240 000
Свободного назначения
Площадь м2:
130.8//
Этаж:
2/2
Fatal error: Uncaught TypeError: count(): Argument #1 ($value) must be of type Countable|array, bool given in /var/www/hejtxzzf/data/www/etown.ru/cache/compile/6dadd3569c40e1dc13355e58f2822f5ff669213d_0.file.view_similar.tpl.php:51 Stack trace: #0 /var/www/hejtxzzf/data/www/etown.ru/third/smarty/sysplugins/smarty_template_resource_base.php(123): content_659bb4874b1862_51818915(Object(Smarty_Internal_Template)) #1 /var/www/hejtxzzf/data/www/etown.ru/third/smarty/sysplugins/smarty_template_compiled.php(114): Smarty_Template_Resource_Base->getRenderedTemplateCode(Object(Smarty_Internal_Template)) #2 /var/www/hejtxzzf/data/www/etown.ru/third/smarty/sysplugins/smarty_internal_template.php(216): Smarty_Template_Compiled->render(Object(Smarty_Internal_Template)) #3 /var/www/hejtxzzf/data/www/etown.ru/third/smarty/sysplugins/smarty_internal_template.php(385): Smarty_Internal_Template->render() #4 /var/www/hejtxzzf/data/www/etown.ru/cache/compile/c664159adb2d9ac77b6749f2c5121594a0f7be7e_0.file.view_active.tpl.php(418): Smarty_Internal_Template->_subTemplateRender('file:view_simil...', NULL, NULL, 0, 3600, Array, 0, false) #5 /var/www/hejtxzzf/data/www/etown.ru/third/smarty/sysplugins/smarty_template_resource_base.php(123): content_67074130dc8708_20231701(Object(Smarty_Internal_Template)) #6 /var/www/hejtxzzf/data/www/etown.ru/third/smarty/sysplugins/smarty_template_compiled.php(114): Smarty_Template_Resource_Base->getRenderedTemplateCode(Object(Smarty_Internal_Template)) #7 /var/www/hejtxzzf/data/www/etown.ru/third/smarty/sysplugins/smarty_internal_template.php(216): Smarty_Template_Compiled->render(Object(Smarty_Internal_Template)) #8 /var/www/hejtxzzf/data/www/etown.ru/third/smarty/sysplugins/smarty_internal_template.php(385): Smarty_Internal_Template->render() #9 /var/www/hejtxzzf/data/www/etown.ru/cache/compile/56a38660b9b657662d0686a88ba02502ddbbd4bc_0.file.realty_view.tpl.php(29): Smarty_Internal_Template->_subTemplateRender('file:view_activ...', NULL, NULL, 0, 3600, Array, 0, false) #10 /var/www/hejtxzzf/data/www/etown.ru/third/smarty/sysplugins/smarty_template_resource_base.php(123): content_659bb4873e5fd2_49196044(Object(Smarty_Internal_Template)) #11 /var/www/hejtxzzf/data/www/etown.ru/third/smarty/sysplugins/smarty_template_compiled.php(114): Smarty_Template_Resource_Base->getRenderedTemplateCode(Object(Smarty_Internal_Template)) #12 /var/www/hejtxzzf/data/www/etown.ru/third/smarty/sysplugins/smarty_internal_template.php(216): Smarty_Template_Compiled->render(Object(Smarty_Internal_Template)) #13 /var/www/hejtxzzf/data/www/etown.ru/third/smarty/sysplugins/smarty_internal_template.php(385): Smarty_Internal_Template->render() #14 /var/www/hejtxzzf/data/www/etown.ru/cache/compile/5d93b8113254986f3e88ef514702f6e897abff16_0.file.layout_full.tpl.php(46): Smarty_Internal_Template->_subTemplateRender('realty_view.tpl', NULL, NULL, 0, 3600, Array, 0, true) #15 /var/www/hejtxzzf/data/www/etown.ru/third/smarty/sysplugins/smarty_template_resource_base.php(123): content_659bb42985ca62_78096130(Object(Smarty_Internal_Template)) #16 /var/www/hejtxzzf/data/www/etown.ru/third/smarty/sysplugins/smarty_template_compiled.php(114): Smarty_Template_Resource_Base->getRenderedTemplateCode(Object(Smarty_Internal_Template)) #17 /var/www/hejtxzzf/data/www/etown.ru/third/smarty/sysplugins/smarty_internal_template.php(216): Smarty_Template_Compiled->render(Object(Smarty_Internal_Template)) #18 /var/www/hejtxzzf/data/www/etown.ru/third/smarty/sysplugins/smarty_internal_template.php(385): Smarty_Internal_Template->render() #19 /var/www/hejtxzzf/data/www/etown.ru/cache/compile/3fae5a0abe69c1e265646df005d16ae85e6e3aa5_0.file.main.tpl.php(172): Smarty_Internal_Template->_subTemplateRender('layout_full.tpl', NULL, NULL, 0, 3600, Array, 0, true) #20 /var/www/hejtxzzf/data/www/etown.ru/third/smarty/sysplugins/smarty_template_resource_base.php(123): content_659bb429813a18_78025304(Object(Smarty_Internal_Template)) #21 /var/www/hejtxzzf/data/www/etown.ru/third/smarty/sysplugins/smarty_template_compiled.php(114): Smarty_Template_Resource_Base->getRenderedTemplateCode(Object(Smarty_Internal_Template)) #22 /var/www/hejtxzzf/data/www/etown.ru/third/smarty/sysplugins/smarty_internal_template.php(216): Smarty_Template_Compiled->render(Object(Smarty_Internal_Template)) #23 /var/www/hejtxzzf/data/www/etown.ru/third/smarty/sysplugins/smarty_internal_templatebase.php(238): Smarty_Internal_Template->render(false, 0) #24 /var/www/hejtxzzf/data/www/etown.ru/third/smarty/sysplugins/smarty_internal_templatebase.php(116): Smarty_Internal_TemplateBase->_execute(Object(Smarty_Internal_Template), NULL, NULL, NULL, 0) #25 /var/www/hejtxzzf/data/www/etown.ru/index.php(133): Smarty_Internal_TemplateBase->fetch('main.tpl') #26 {main} thrown in /var/www/hejtxzzf/data/www/etown.ru/cache/compile/6dadd3569c40e1dc13355e58f2822f5ff669213d_0.file.view_similar.tpl.php on line 51