Коммерческая / Продажа / Свободного назначения, Россия, Москва, Василия Ощепкова улица, 19 544 000

Кратко

ID 39762002
Категория Свободного назначения
Страна Россия
Город Москва
Метро Новомосковская
Район Новомосковский
Улица Василия Ощепкова улица
Номер дома д.1
Этаж 1
Этажность 15
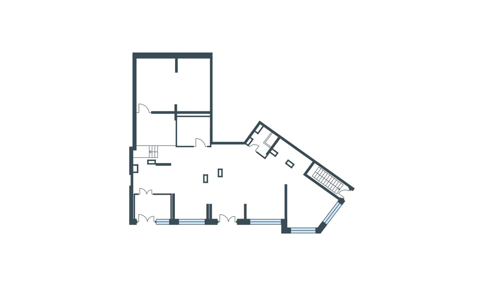
Площадь общая 120.9
Продаётся коммерческое помещение площадью 120,9 м2 на 1-м этаже 15-этажного жилого дома в ЖК «Москвичка». Основные преимущества: отдельный вход; место под вывеску; витринное остекление; круглосуточный доступ; помещение без ремонта, что позволяет обустроить его по своему вкусу и требованиям бизнеса; метро в пешей доступности - от 7 минут до м. Коммунарка; помещение находится в жилом комплексе комфорт-класса; развитый район с насыщенной инфраструктурой и активным пешеходным трафиком. Технические характеристики: наличие всех необходимых коммуникаций - водоснабжение, канализация, электроснабжение. Условия: помещение предоставляется без посредников, напрямую от собственника - компании «Аструм Недвижимость», которая управляет коммерческой инфраструктурой жилых комплексов ГК «Гранель». ЖК «Москвичка» - это уютная локация, рассчитанная на проживание более 12 тысяч человек, большинство из которых - молодые и активные люди в возрасте от 20 до 50 лет. Уже сейчас в комплексе успешно работают множество бизнесов и якорные арендаторы. Среди них: продуктовые магазины, кафе, салоны красоты и другие предприятия сферы услуг. Расположение комплекса в 700 метрах от станции метро «Коммунарка» обеспечивает отличный транспортный доступ, что позволяет жителям микрорайона добираться до центра столицы быстро и удобно. Весь микрорайон активно развивается и расширяется, создавая отличные перспективы для бизнеса. Наши менеджеры помогут вам подобрать наиболее подходящее помещение для вашего бизнеса. Звоните и узнайте подробности! [#6021416#]

Карта

Похожие

Свободного назначения
Площадь м2: 222.7//
Этаж: 1/15
Свободного назначения
Площадь м2: 120.9//
Этаж: 1/15
Свободного назначения
Площадь м2: 129.2//
Этаж: 1/15
Свободного назначения
Площадь м2: 157//
Этаж: 1/15
Свободного назначения
Площадь м2: 158.2//
Этаж: 1/15