Коммерческая / Продажа / Свободного назначения, Россия, Московская область, Люберцы, Рождественская улица, 65 732 000

Кратко

ID 39870967
Категория Свободного назначения
Страна Россия
Регион Московская область
Город Люберцы
Метро Некрасовка
Улица Рождественская улица
Номер дома д.12
Этаж 1
Этажность 2
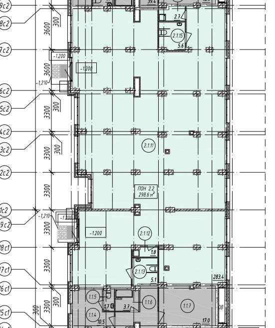
Площадь общая 298.6
Текст: Помещение под МЕДЦЕНТР от ЗАСТРОЙЩИКА! Нежилое помещение № 2.2, корпус 5.1, общей площадью 298,60 м2, первый этаж, 1 вход с улицы, 1 вход со двора. напротив муниципальный ДОО на 560 мест и Школа на 1500 мест. Помещение выходит на первую линию внутриквартального сквозного проезда. Есть стихийная парковка вдоль улицы. Высота потолков 4 м, выделенная мощность - 0,2кВт/ м2, состояние помещения - shell&core. заведены точки подключения к системам вентиляции, гвс/хвс, канализации. В помещении 9 больших витринных окон, предназначено под организацию поликлиники/мед. кабинета, под помещением - тех. этаж+кладовые. Дом вводится в эксплуатацию в 3 кв. 2024 г. ЖК сдан, заселен. Жилой комплекс расположен в 5 минутах езды от станций метро "Некрасовка», МЦД ст. Люберцы-1,2. Общее количеством квартир 4 700 шт. и населением более 8 000 человек. Целевая продажа - под мед. услуги. Доступна беспроцентная рассрочка на 2 года, все подробности по телефону. [#7533405#]

Карта

Похожие

Свободного назначения
Площадь м2: 5//
Этаж: -2/25
Свободного назначения
Площадь м2: 4//
Этаж: -1/24
Свободного назначения
Площадь м2: 2.3//
Этаж: 0/25
Свободного назначения
Площадь м2: 5//
Этаж: -1/24
Свободного назначения
Площадь м2: 5.1//
Этаж: -1/24