Коммерческая / Аренда, Пермь, 48 500
Кратко
| ID | 39877073 |
|---|---|
| Категория | Аренда |
| Город | Пермь |
| Этаж | 1 |
| Этажность | 6 |
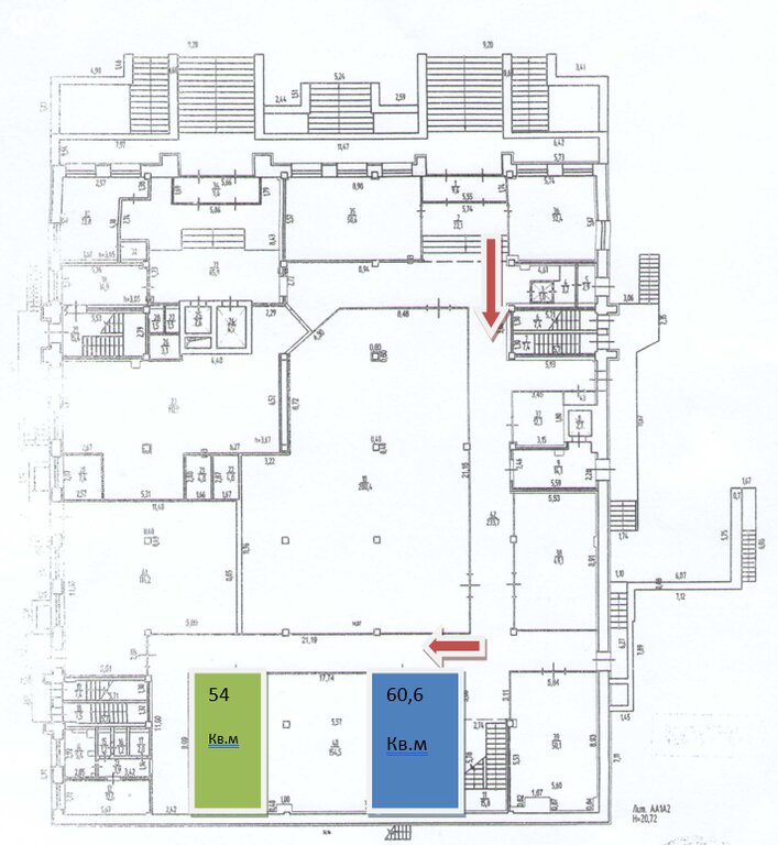
| Площадь общая | 60.6 |
Сдается в аренду помещение на первом этаже БЦ «Славяновский Plaza».
Помещение без окон расположено в торгово-офисной галерее. Разделено перегородкой на две половины. Можно разместить торговую точку, пункт выдачи или клиентский офис.
Аренда указана без коммунальных затрат.
«Славяновский Plaza» - это современный бизнес-центр , соответствующий высокому классу В с высоким уровнем комфортности и инженерной оснащенности. Территория здания предусматривает наземную охраняемую парковку для автомобилей. Здание обеспечено комплексной системой безопасности: охранной сигнализацией, центральным кондиционированием, наружным видеонаблюдением.
Самый центр. Здание находится на первой линии главной улицы города - улицы Ленина. Рядом Театр-Театр, ТРЦ «Облака», множество офисных зданий и бизнес-центров, жилых домов. Высокая плотность населения, активный пешеходный и автомобильный трафик! Идеальное место для бизнеса!
Звоните. Ответим на Ваши вопросы и организуем показ в удобное для Вас время.Номер объекта: #5/714937/9738
Помещение без окон расположено в торгово-офисной галерее. Разделено перегородкой на две половины. Можно разместить торговую точку, пункт выдачи или клиентский офис.
Аренда указана без коммунальных затрат.
«Славяновский Plaza» - это современный бизнес-центр , соответствующий высокому классу В с высоким уровнем комфортности и инженерной оснащенности. Территория здания предусматривает наземную охраняемую парковку для автомобилей. Здание обеспечено комплексной системой безопасности: охранной сигнализацией, центральным кондиционированием, наружным видеонаблюдением.
Самый центр. Здание находится на первой линии главной улицы города - улицы Ленина. Рядом Театр-Театр, ТРЦ «Облака», множество офисных зданий и бизнес-центров, жилых домов. Высокая плотность населения, активный пешеходный и автомобильный трафик! Идеальное место для бизнеса!
Звоните. Ответим на Ваши вопросы и организуем показ в удобное для Вас время.Номер объекта: #5/714937/9738
Контакты на сайте: