Коммерческая / Аренда, Камышлов, 25 000

Кратко

ID 39877293
Категория Аренда
Город Камышлов
Этаж 2
Этажность 2
Площадь общая 35
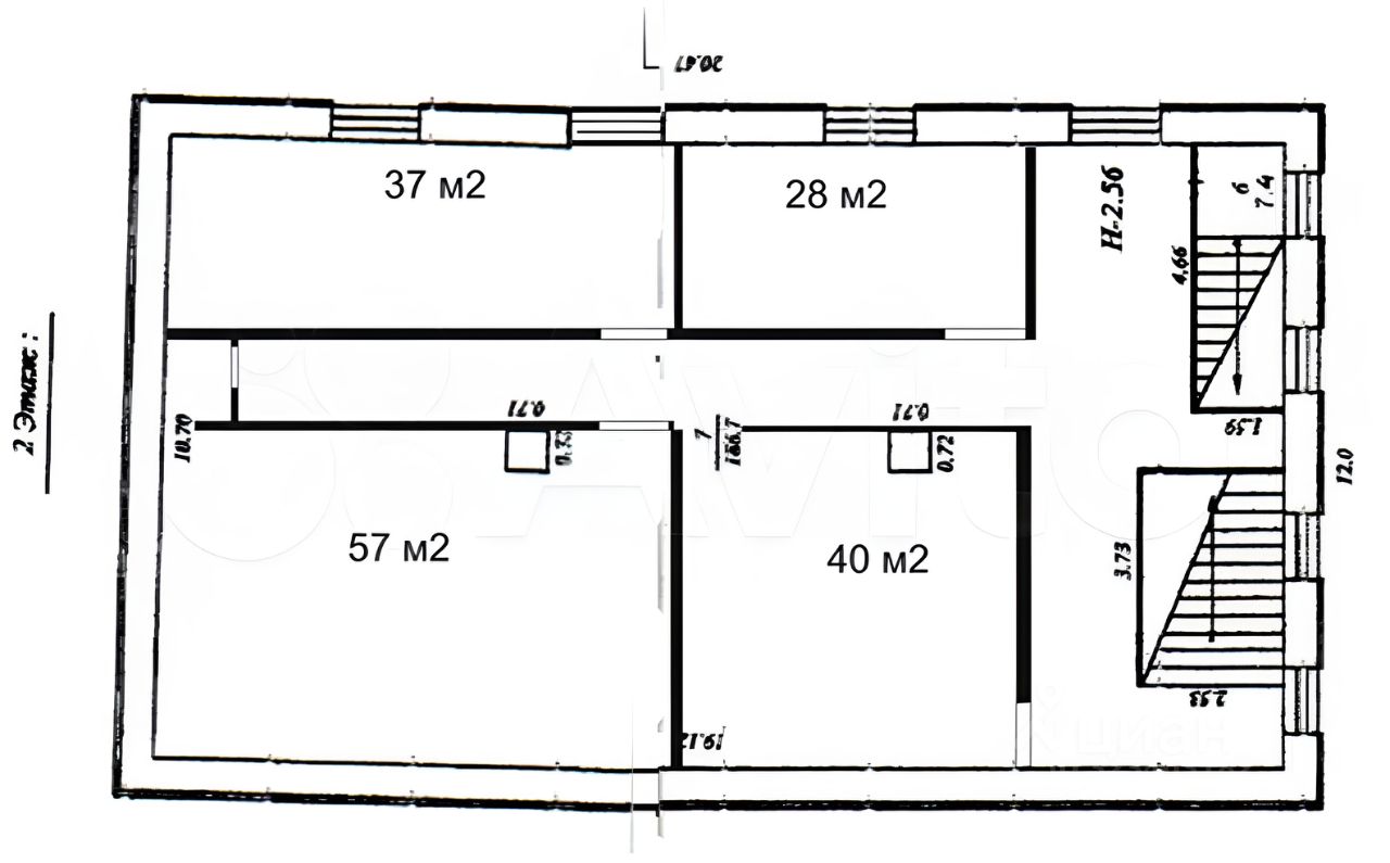
Сдаются в аренду бутики в ТД Остров сокровищ ( 2 этаж ) разных форматов: 57 м2, 40 м2, 37 м2, 28 м2, в центре города с высоким трафиком, все коммуникации, в здании находятся также: маг. Восточные сладости, маг. Пивной, маг. Магнит-Косметик, что делает привлекательным для покупателей данную локацию.

Контакты на сайте: источник

Карта

Похожие

Аренда
Площадь м2: 95//
Этаж: 1/1
Аренда
Площадь м2: 35//
Этаж: 2/2
Аренда
Площадь м2: 89//
Этаж: 1/1
Аренда
Площадь м2: 89//
Этаж: 1/1