Коммерческая / Аренда / Торговые площади, Волгоград, 495 900
Кратко
| ID | 39960048 |
|---|---|
| Категория | Торговые площади |
| Город | Волгоград |
| Этажность | 3 |
| Площадь общая | 522 |
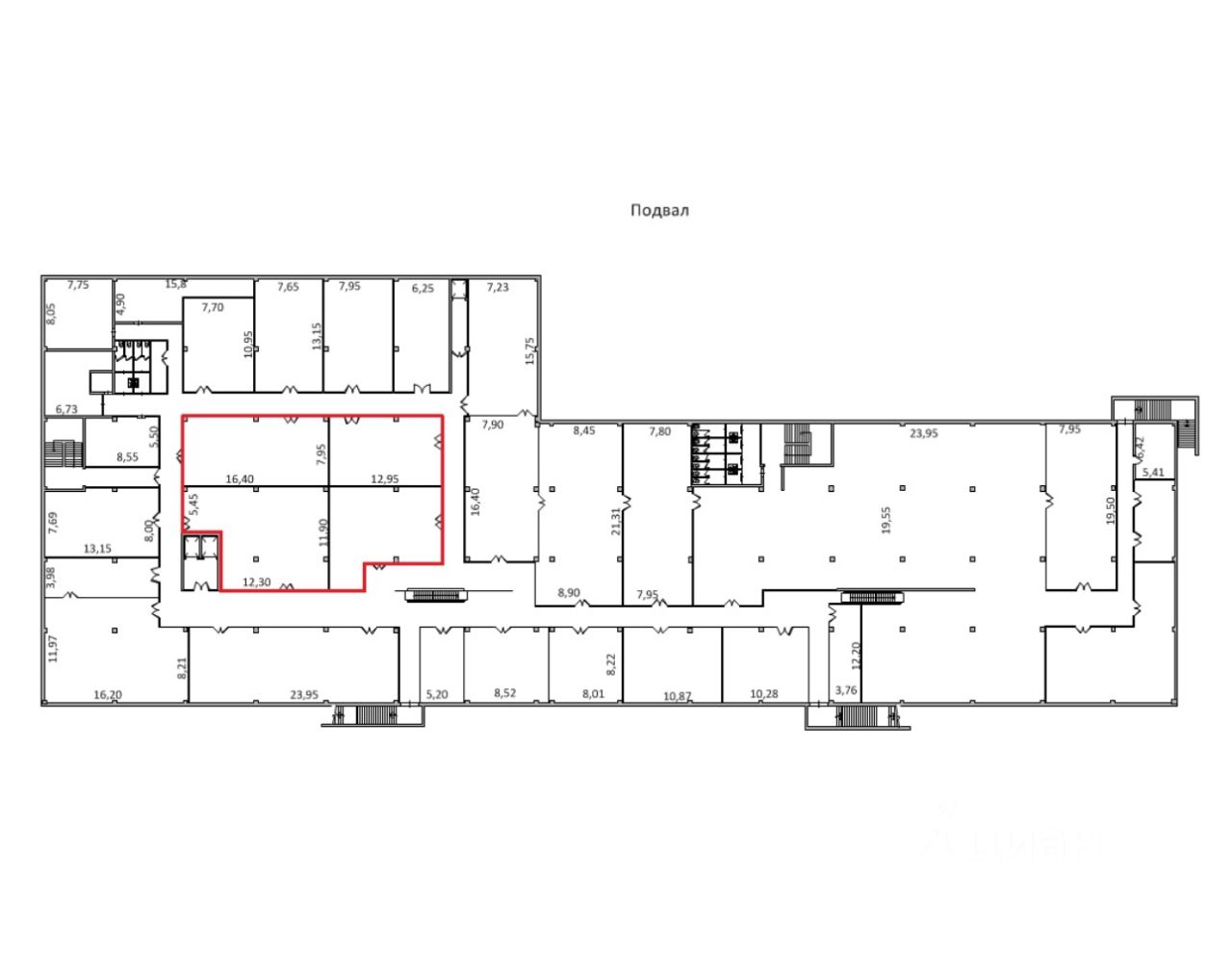
Аренда помещения 522 м² в ТЦ Юбилейный, Волгоград
Предлагается в аренду торговое помещение 522 м², расположенное в торговом центре Юбилейный,
г. Волгоград, Красноармейский район, ул. 50 лет Октября, 15а.
Этаж: цокольный
Статус: въезд возможен с января 2026 года
Локация
Помещение находится в одном из самых посещаемых ТЦ района.
По соседству — якорные арендаторы:
• DNS
• Офисмаг
•Моё
и другие магазины постоянного трафика.
Описание помещения
— Площадь 522 м², выделено на плане (красная зона)
— Открытая планировка
— Удобный доступ для клиентов
— Трафик формируют крупные федеральные сети
— Современное освещение
— Возможность брендирования входной группы
— Подходит под торговлю, услуги, шоурум, склад-магазин, оффлайн-площадки и др.
Формат сотрудничества
Предлагаем:
— долгосрочную аренду
— адаптацию внутреннего пространства под нужды арендатора
— гибкие условия въезда
— быстрый показ помещения
Предлагается в аренду торговое помещение 522 м², расположенное в торговом центре Юбилейный,
г. Волгоград, Красноармейский район, ул. 50 лет Октября, 15а.
Этаж: цокольный
Статус: въезд возможен с января 2026 года
Локация
Помещение находится в одном из самых посещаемых ТЦ района.
По соседству — якорные арендаторы:
• DNS
• Офисмаг
•Моё
и другие магазины постоянного трафика.
Описание помещения
— Площадь 522 м², выделено на плане (красная зона)
— Открытая планировка
— Удобный доступ для клиентов
— Трафик формируют крупные федеральные сети
— Современное освещение
— Возможность брендирования входной группы
— Подходит под торговлю, услуги, шоурум, склад-магазин, оффлайн-площадки и др.
Формат сотрудничества
Предлагаем:
— долгосрочную аренду
— адаптацию внутреннего пространства под нужды арендатора
— гибкие условия въезда
— быстрый показ помещения
Контакты на сайте: