Коммерческая / Аренда / Торговые площади, Россия, Москва, Академика Челомея улица, 478 200

Кратко

ID 39922031
Категория Торговые площади
Страна Россия
Город Москва
Метро Воронцовская
Район Обручевский
Улица Академика Челомея улица
Номер дома д.4Б
Этаж 1
Этажность 1
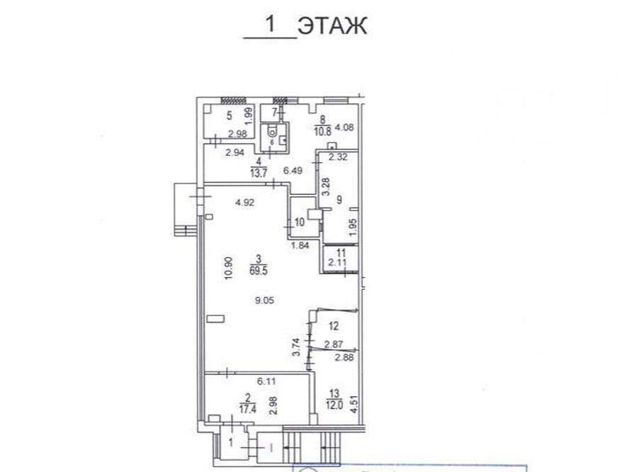
Площадь общая 159.4
Сдается в аренду стрит-ритейл площадью 159.4 кв. м, в прямую аренду, на любой срок с предоплатой за 1 месяц. Помещение располагается в 1-этажном торгово-общественном центре м. Воронцовская, район города - Обручевский. Помещение располагается на 1 этаже здания. Возможное назначение помещения - прочее, высота потолков 3 м, здание на первой линии. [#7730228#]

Карта

Похожие

Торговые площади
Площадь м2: 159.4//
Этаж: 1/1
Торговые площади
Площадь м2: 103//
Этаж: 1/9
Торговые площади
Площадь м2: 300//
Этаж: 1/1
Торговые площади
Площадь м2: 11//
Этаж: 1/3
Торговые площади
Площадь м2: 106//
Этаж: 1/28