Коммерческая / Аренда, Копейск, 230 000
Кратко
| ID | 39932867 |
|---|---|
| Категория | Аренда |
| Город | Копейск |
| Этажность | 1 |
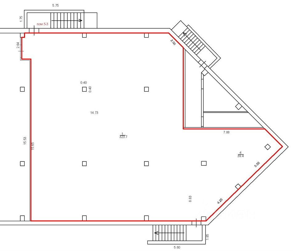
| Площадь общая | 324 |
ПРЕДЛОЖЕНИЕ ОТ СОБСТВЕННИКА БЕЗ КОМИССИЙ!
Предлагаем в долгосрочную аренду нежилое помещение общей площадью 323.7м2, высота потолков 2.7м, 2-е входные группы (1ая основная, выходит на пр. Победы; 2ая пожарный/эвакуационный выход во двор). Удачно расположено на первой линии на въезде в город из Челябинска (под супермаркетом Пятёрочка, за стенкой соседнее примыкающее помещение сеть магазинов Чижик), в нежилом административном здании по адресу: г. Копейск, пр-кт Победы 48а в ЖК Золотые ворота.
Все коммуникации центральные: отопление, водоснабжение, канализация, эл-во 50кВт, вентиляция. Хороший оживленный автомобильный и пешеходный трафик, большая парковка для авто, в непосредственной близости строится жилой массив! Идеально подойдет под торговлю, организацию ресторанного бизнеса или объекта общественного питания, бильярдный зал, компьютерный клуб, организацию праздников/квестов/различных мероприятий, сауну, банк, офисную деятельность, арендный бизнес. При необходимости есть возможность разделить на 2а отдельных блока в районе 120м2 и 195м2, с общим входом/тамбуром (обустройство и ремонт тамбура готовы взять на себя!). За свой счет выполним изготовление и монтаж козырька с местом по фасадную рекламу и финишный ремонт входной группы с учётом потребностей будущего арендатора! Готовы обсудить продажу объекта! За более подробной информацией и по просмотру звоните по указанному телефону. Торг возможен, обсуждается индивидуально!
Предлагаем в долгосрочную аренду нежилое помещение общей площадью 323.7м2, высота потолков 2.7м, 2-е входные группы (1ая основная, выходит на пр. Победы; 2ая пожарный/эвакуационный выход во двор). Удачно расположено на первой линии на въезде в город из Челябинска (под супермаркетом Пятёрочка, за стенкой соседнее примыкающее помещение сеть магазинов Чижик), в нежилом административном здании по адресу: г. Копейск, пр-кт Победы 48а в ЖК Золотые ворота.
Все коммуникации центральные: отопление, водоснабжение, канализация, эл-во 50кВт, вентиляция. Хороший оживленный автомобильный и пешеходный трафик, большая парковка для авто, в непосредственной близости строится жилой массив! Идеально подойдет под торговлю, организацию ресторанного бизнеса или объекта общественного питания, бильярдный зал, компьютерный клуб, организацию праздников/квестов/различных мероприятий, сауну, банк, офисную деятельность, арендный бизнес. При необходимости есть возможность разделить на 2а отдельных блока в районе 120м2 и 195м2, с общим входом/тамбуром (обустройство и ремонт тамбура готовы взять на себя!). За свой счет выполним изготовление и монтаж козырька с местом по фасадную рекламу и финишный ремонт входной группы с учётом потребностей будущего арендатора! Готовы обсудить продажу объекта! За более подробной информацией и по просмотру звоните по указанному телефону. Торг возможен, обсуждается индивидуально!
Контакты на сайте: