Коммерческая / Аренда / Офисы, Ростов-на-Дону, 1 398 300
Кратко
ID | 39817286 |
---|---|
Категория | Офисы |
Город | Ростов-на-Дону |
Этаж | 1 |
Этажность | 5 |
Площадь общая | 2370 |
Уникальное предложение для организации в городе Ростов-на-Дону: медицинского центра, центра обработки данных, архитектурного бюро, крупного логистического центра или любого другого бизнеса с большим количеством работающих сотрудников, которых необходимо сконцентрировать в одном месте. Также подходит под размещение частного учебного заведения.
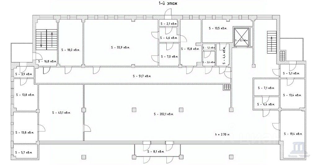
Сдается отдельно стоящее пяти этажное здание, с эксплуатируемым подвальным помещением, общей площадью - 2370 кв. м, кабинетная планировка по 8-10 помещений на каждом этаже, возможна поэтажная сдача помещения под любой вид деятельности.
Подвальное помещение: 211, 7 кв. м.
Первый этаж: площадь 536,8 кв.м,
Второй этаж: 584.7 кв.м.
Третий этаж: 343,2 кв.м.
Четвертый этаж: 348,2 кв.м.
Пятый этаж: 345,4 кв.м.
Из особых преимуществ:
Локация - близость к центру города, своя парковка.
Закрытая территория.
Действующий лифт повышенной вместимости.
Вид из окон на большую парковую зону.
Наличие большого конференц-зала.
Возможность создания оружейной, кассовой, расчетной комнаты.
Фасад выходит на проезжую часть, возможно размещение рекламной вывески.
Сдается отдельно стоящее пяти этажное здание, с эксплуатируемым подвальным помещением, общей площадью - 2370 кв. м, кабинетная планировка по 8-10 помещений на каждом этаже, возможна поэтажная сдача помещения под любой вид деятельности.
Подвальное помещение: 211, 7 кв. м.
Первый этаж: площадь 536,8 кв.м,
Второй этаж: 584.7 кв.м.
Третий этаж: 343,2 кв.м.
Четвертый этаж: 348,2 кв.м.
Пятый этаж: 345,4 кв.м.
Из особых преимуществ:
Локация - близость к центру города, своя парковка.
Закрытая территория.
Действующий лифт повышенной вместимости.
Вид из окон на большую парковую зону.
Наличие большого конференц-зала.
Возможность создания оружейной, кассовой, расчетной комнаты.
Фасад выходит на проезжую часть, возможно размещение рекламной вывески.
Контакты на сайте: