Коммерческая / Аренда / Офисы, Россия, Санкт-Петербург, Южное шоссе, 24 998

Кратко

ID 39951883
Категория Офисы
Страна Россия
Город Санкт-Петербург
Метро Проспект Славы
Район ФРУНЗЕНСКИЙ
Улица Южное шоссе
Номер дома д.37к1 литера А
Кол.во комнат 1
Этаж 2
Этажность 2
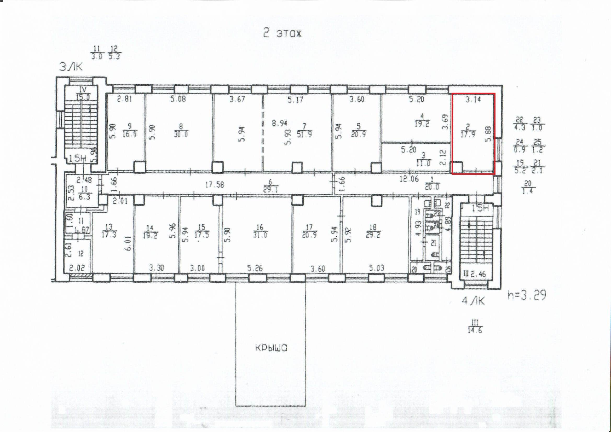
Площадь общая 29
Офисное помещение 29,0 м2 без комиссии от собственника, расположенное на 2 этаже офисного центра. Вход с улицы. Кабинетная система. Ремонт: стеклопакеты, подвесной потолок, обои под покраску. Высота потолка 3,3 м. Предоставление юридического адреса. На территории расположены кафе и магазины. Удобная транспортная доступность. Отличный подъезд, рядом пассажирская станция "Сортировочная", остановки общественного транспорта, близость к КАД. коммунальные услуги включены в стоимость. Телефония, интернет (оплачиваются отдельно). Возможность аренды дополнительных площадей (открытая площадка, торговая площадь). [#6109317#]

Карта

Похожие

Офисы
Площадь м2: 29//
Этаж: 2/2
Офисы
Площадь м2: 207.7//
Этаж: 1/1
Офисы
Площадь м2: 34//
Этаж: 8/11
Офисы
Площадь м2: 1067//
Этаж: 3/3
Офисы
Площадь м2: 48//
Этаж: 2/3