Коммерческая / Аренда / Свободного назначения, Россия, Москва, Шеногина улица, 4 815 000

Кратко

ID 39870937
Категория Свободного назначения
Страна Россия
Город Москва
Метро Шелепиха
Район Хорошёво-Мневники
Улица Шеногина улица
Номер дома д.2
Этаж 1
Этажность 24
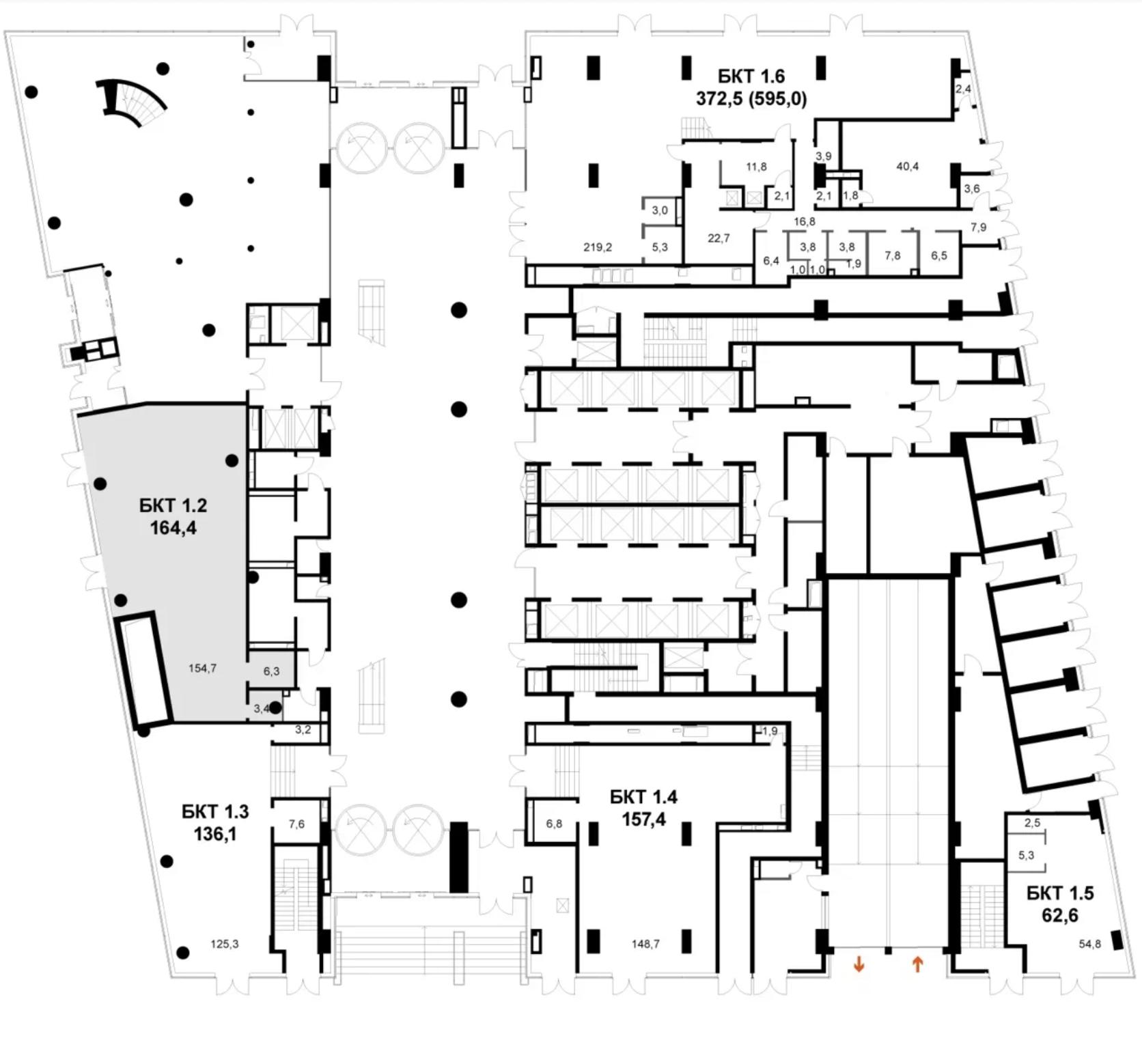
Площадь общая 520.5
Помещения свободного назначения от 62,6 м2 в бизнес-центре Sydney City (класс ""А"") — премиум-локация на Шелепихинской набережной Ищете стильное, современное пространство под магазин, шоурум, салон или офис? В Sydney City — новом бизнес-центре класса «А» в сердце Большого Сити — открылся набор площадей свободного назначения с панорамным остеклением, высокими потолками и гибкими условиями аренды. Адрес: ул. Шеногина, земельный участок 2/11 Арендные каникулы — есть! Состояние: без отделки (shell&core) — создайте пространство под свой бренд Высота потолков: от 3,8 до 4,65 м Панорамные витрины в пол 1 или 2 отдельных входа Инженерия БЦ: Энерговооруженность — 100 Вт/м2 Воздухообмен — 60 м/ч Система кондиционирования — чиллер/фанкойл Современные системы пожаротушения, оповещения и безопасности Автоматизация и диспетчеризация всех инженерных систем Шаг колонн: 8,4 8,4 м 5 лифтовых групп (в том числе 17 грузопассажирских лифтов) Просторная входная группа Транспортная доступность: Сейчас: 15 минут пешком до метро и МЦК «Шелепиха» С 2026 года: новая станция «Звенигородская» — всего 1 минута пешком! Инфраструктура: 24-этажный бизнес-центр находится в центре флагманского проекта премиум-класса от ГК ФСК - Sydney City. Первый жилой квартал в концепции well being в Москве. На территории в 19,3 га ведется строительство 23 корпусов, переменной этажности 8-44 этажей. Квартал обладает развитой собственной социальной и коммерческой инфраструктурой, начиная от престижной школы и д/с и заканчивая фудхоллом и развлекательным центром. Активный пешеходный и деловой трафик. Условия аренды: Эксплуатационные и коммунальные платежи оплачиваются отдельно по факту (счета от УК). Гибкие условия. Прямой договор. Звоните, чтобы назначить просмотр и обсудить условия! [#7436767#]

Карта

Похожие

Свободного назначения
Площадь м2: 164.4//
Этаж: 1/24
Свободного назначения
Площадь м2: 520.5//
Этаж: 1/24
Свободного назначения
Площадь м2: 520.5//
Этаж: 1/24
Свободного назначения
Площадь м2: 136.1//
Этаж: 1/24
Свободного назначения
Площадь м2: 70//
Этаж: 1/44