Коммерческая / Аренда / Свободного назначения, Россия, Москва, Шарикоподшипниковская улица, 267 000
Кратко
ID | 39762599 |
---|---|
Категория | Свободного назначения |
Страна | Россия |
Город | Москва |
Метро | Дубровка |
Район | Южнопортовый |
Улица | Шарикоподшипниковская улица |
Номер дома | д.11к1 |
Этаж | 1 |
Этажность | 30 |
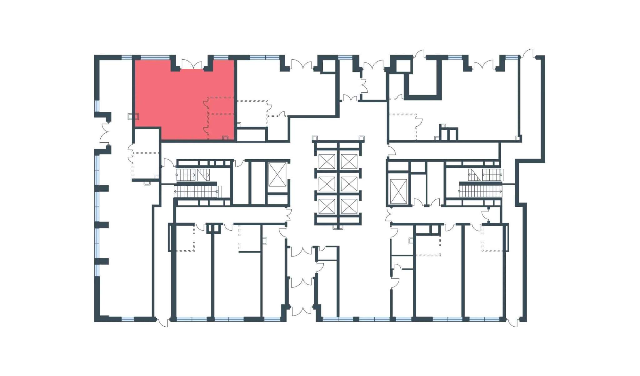
Площадь общая | 53.4 |
ЖК «MYPRIORITY Дубровка» - жилой комплекс бизнес-класса, который ГК «Гранель» возводит в ЮВАО Москвы, в динамично развивающемся районе с богатой историей. Ближайшая станция метро - «Дубровка». Объект расположен в шаговой доступности от зоны Южного порта, которая будет трансформирована в крупнейший общественно-деловой квартал по проекту японского архбюро Nikken Sekkei.
ЖК «MYPRIORITY Дубровка» представляет собой современный квартал из высотных зданий переменной этажности с металлическими панелями на фасадах и увеличенным остеклением. Архитектурную концепцию разработало ведущее бюро T+T Architects, создав уникальное сочетание урбанистической динамики и уюта приватного пространства. Корпуса комплекса формируют закрытые внутренние дворы с авторским ландшафтным дизайном, детскими игровыми системами playhub и зонами для занятий спортом.
За 3 минуты неспешной прогулки от жилого комплекса можно дойти до станции метро «Дубровка», 10 минут - до станции МЦК «Дубровка», а 12 минут - до метро «Волгоградский проспект». Прямой выезд на ТТК и Волгоградский проспект позволяет за 7 минут доехать до Садового кольца и за 11 минут - до Кремля.
«Аструм Недвижимость» предлагает в комплексе коммерческие помещения площадью от 21,3 до 302,4 кв.м. На выбор предлагаются объекты под супермаркет, предприятия общепита, офисы, магазины и другие предприятия сферы услуг. Коммерческая недвижимость в «MYPRIORITY Дубровка» - это выгодное вложение в перспективный район с гарантированным спросом от жителей комплекса и прилегающих территорий. [#7325292#]
Карта
Похожие
Свободного назначения
Площадь м2:
21.3//
Этаж:
1/30
Свободного назначения
Площадь м2:
56.5//
Этаж:
1/30
Свободного назначения
Площадь м2:
53.4//
Этаж:
1/30
Свободного назначения
Площадь м2:
26.6//
Этаж:
1/30
Свободного назначения
Площадь м2:
207.4//
Этаж:
1/30