Коммерческая / Аренда, Нижний Новгород, 350 000
Кратко
| ID | 39953579 |
|---|---|
| Категория | Аренда |
| Город | Нижний Новгород |
| Этаж | 1 |
| Этажность | 1 |
| Площадь общая | 526 |
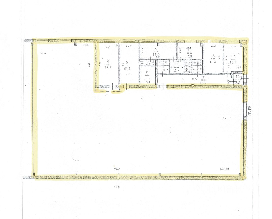
АО "ВВПКП "Оборонпромкомплекс", на правах собственника сдает в аренду отдельно стоящее отапливаемое здание общей площадью 526,2 м2 и право пользования прилегающей к зданию территории площадью 1 200 м2 по адресу ул. Электровозная 18А. Территория по всему периметру огорожена бетонным забором, въездными воротами с калиткой, в здании имеются офисное помещение, раздевалка, санузел.
Стоимость аренды и право пользования территорией составляют 350 тыс. руб в месяц, НДС в включён в стоимость. Отопление от собственной котельной - включено в стоимость аренды. Потребляемая электрическая мощность 30 кВт.
Осмотр объекта в рабочие дни с 9.00 до 15.00.
Стоимость аренды и право пользования территорией составляют 350 тыс. руб в месяц, НДС в включён в стоимость. Отопление от собственной котельной - включено в стоимость аренды. Потребляемая электрическая мощность 30 кВт.
Осмотр объекта в рабочие дни с 9.00 до 15.00.
Контакты на сайте: