Дома продажа / Коттеджи, Владивосток, 45 000 000
Кратко
| ID | 39860251 |
|---|---|
| Категория | Коттеджи |
| Город | Владивосток |
| Этажность | 2 |
| Площадь общая | 222.7 |
| Площадь участка | 6.34 |
Предлагаем к продаже современный коттедж, который расположен в уникальном месте.
Сам дом теплый, очень светлый, оснащённый всем необходимым для комфортного проживания. Дом проектировался и строился для себя, однако в связи с переездом в доме так никто и не жил. Вся встроенная мебель и техника абсолютно новые.
Основные характеристики:
- дом состоит из 2 жилых этажей;
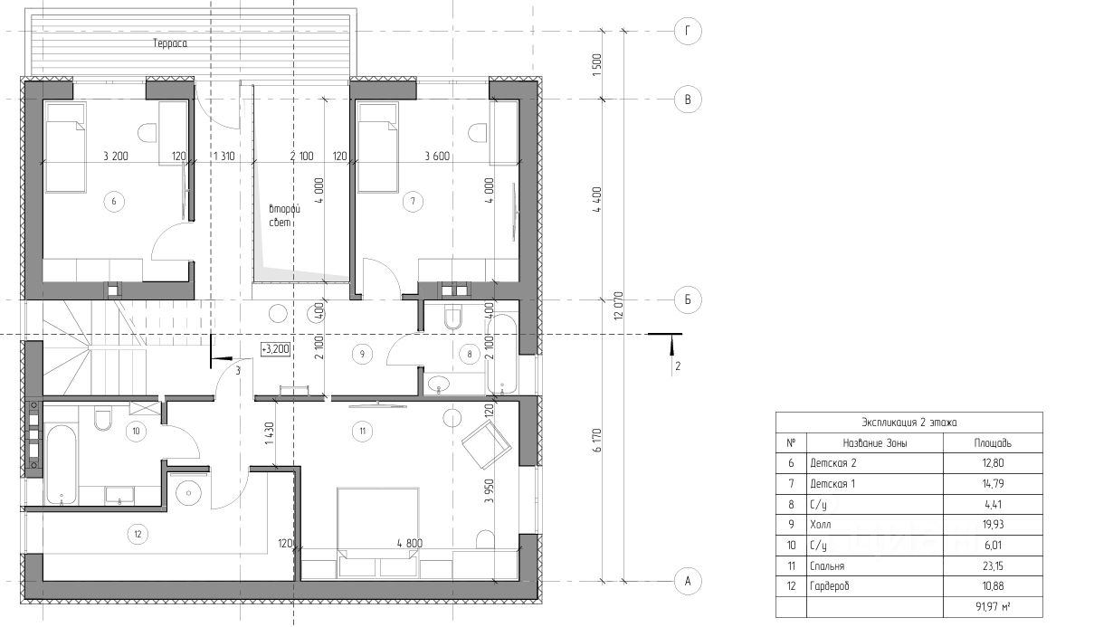
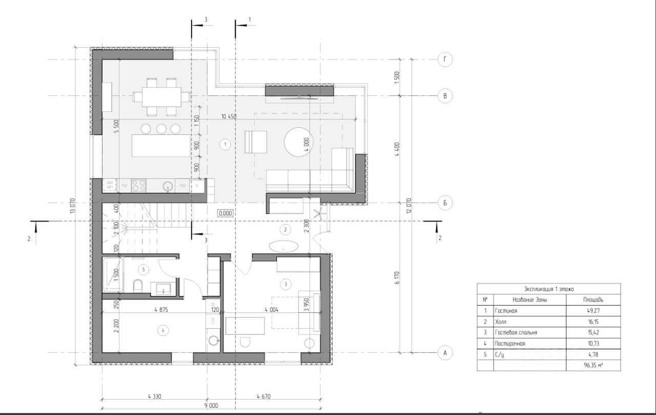
- в доме 3 санузла с душевыми и ваннами (один на первом этаже и два на втором), мастер спальня, 2 детских комнаты, гардеробная комната, просторная кухня-гостиная, кабинет, одна терраса с теплым полом, что очень удобно зимой;
- участок 6 соток в собственности;
- дом монолитный, местами стены заполнены газоблоками, есть фото поэтапного строительства,
- фасад - фиброцементные панели;
- кровля из мягкой черепицы;
- все ворота с дистанционным управлением;
- централизованная вода и электросети, канализация - септик;
- отопление: электрическое (на 1 и 2 этаже теплый пол);
- внутренняя отделка дома делалась по дизайн-проекту с использованием дорогих и качественных материалов: на полу паркет и керамогранит, алюминиевые панорамные окна, стены окрашены;
- видеонаблюдение по всему периметру участка;
В шаговой доступности находятся: ТРК "Седанка Сити", кафе "Севан", муниципальная школа 16, детский сад 184, несколько коммерческих учреждений, автобусная остановка и многое другое.
Сам дом теплый, очень светлый, оснащённый всем необходимым для комфортного проживания. Дом проектировался и строился для себя, однако в связи с переездом в доме так никто и не жил. Вся встроенная мебель и техника абсолютно новые.
Основные характеристики:
- дом состоит из 2 жилых этажей;
- в доме 3 санузла с душевыми и ваннами (один на первом этаже и два на втором), мастер спальня, 2 детских комнаты, гардеробная комната, просторная кухня-гостиная, кабинет, одна терраса с теплым полом, что очень удобно зимой;
- участок 6 соток в собственности;
- дом монолитный, местами стены заполнены газоблоками, есть фото поэтапного строительства,
- фасад - фиброцементные панели;
- кровля из мягкой черепицы;
- все ворота с дистанционным управлением;
- централизованная вода и электросети, канализация - септик;
- отопление: электрическое (на 1 и 2 этаже теплый пол);
- внутренняя отделка дома делалась по дизайн-проекту с использованием дорогих и качественных материалов: на полу паркет и керамогранит, алюминиевые панорамные окна, стены окрашены;
- видеонаблюдение по всему периметру участка;
В шаговой доступности находятся: ТРК "Седанка Сити", кафе "Севан", муниципальная школа 16, детский сад 184, несколько коммерческих учреждений, автобусная остановка и многое другое.
Контакты на сайте: