Дома продажа / Коттеджи, Всеволожский район, 21 000 000
Кратко
| ID | 39894449 |
|---|---|
| Категория | Коттеджи |
| Город | Всеволожский район |
| Этажность | 2 |
| Площадь общая | 175 |
| Площадь участка | 6 |
Предлагается в продажу коттедж, площадью 175 кв м, расположенный в Клубном поселке Колтуши, в дуплексе, на участке 12 соток.
Локация: Расположен во Всеволожском районе, 10 км от города. В поселке организована охраняемая территория с видеонаблюдением, асфальтированные дороги, освещенные улицы, детская площадка и ежедневный вывоз мусора.
Участок: Земельный участок 6 соток, территория облагорожена различными растениями, по фасаду каменный забор с ковкой и автоматическими откатными воротами. Въезд-мощение тротуарной плиткой. У дуплекса есть общая постройка с местом для хранения и помещением для бани, а также терраса 28 кв м с теплыми окнами.
Коммуникации: Проведены все центральные коммуникации (электричество, вода, газ, интернет).
Коттедж: Общая площадь коттеджа 175 м2,
2 этажа.
Первый этаж: просторная гостиная, кухня, санузел, гардеробная, подлестничное пространство, кладовая, газовая котельная, обеспечивающая теплом весь дом. Первый этаж оснащен системой теплый пол.
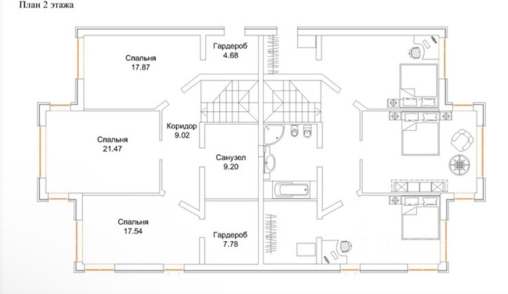
Второй этаж: три светлые спальни, санузел, гардеробная.
Большое количество окон, высокие потолки, монолитная лестница.
Локация: Расположен во Всеволожском районе, 10 км от города. В поселке организована охраняемая территория с видеонаблюдением, асфальтированные дороги, освещенные улицы, детская площадка и ежедневный вывоз мусора.
Участок: Земельный участок 6 соток, территория облагорожена различными растениями, по фасаду каменный забор с ковкой и автоматическими откатными воротами. Въезд-мощение тротуарной плиткой. У дуплекса есть общая постройка с местом для хранения и помещением для бани, а также терраса 28 кв м с теплыми окнами.
Коммуникации: Проведены все центральные коммуникации (электричество, вода, газ, интернет).
Коттедж: Общая площадь коттеджа 175 м2,
2 этажа.
Первый этаж: просторная гостиная, кухня, санузел, гардеробная, подлестничное пространство, кладовая, газовая котельная, обеспечивающая теплом весь дом. Первый этаж оснащен системой теплый пол.
Второй этаж: три светлые спальни, санузел, гардеробная.
Большое количество окон, высокие потолки, монолитная лестница.
Контакты на сайте: