Дома продажа / Коттеджи, Россия, Московская область, пгт. Горки Ленинские, Вятичи территория снт, 12 000 000
Кратко
| ID | 39742201 |
|---|---|
| Категория | Коттеджи |
| Страна | Россия |
| Регион | Московская область |
| Город | пгт. Горки Ленинские |
| Улица | Вятичи территория снт |
| Номер дома | д.342 |
| Кол.во комнат | 5 |
| Этажность | 2 |
| Материал стен | блочный |
| Площадь общая | 300 |
| Площадь участка | 6 |
Дом в 10 км от МКАД (Вятичи) под финишную отделку!
Инфраструктура в шаговой доступности!
Вся городская инфраструктура Горки Ленинские: маркетплейсы, дет сад, магазины(пятерочка) , фермерские продукты, салон красоты, музей заповедник Горки Ленинские. Конно-спортивная база. Прекрасная природа, (лес, речка) .
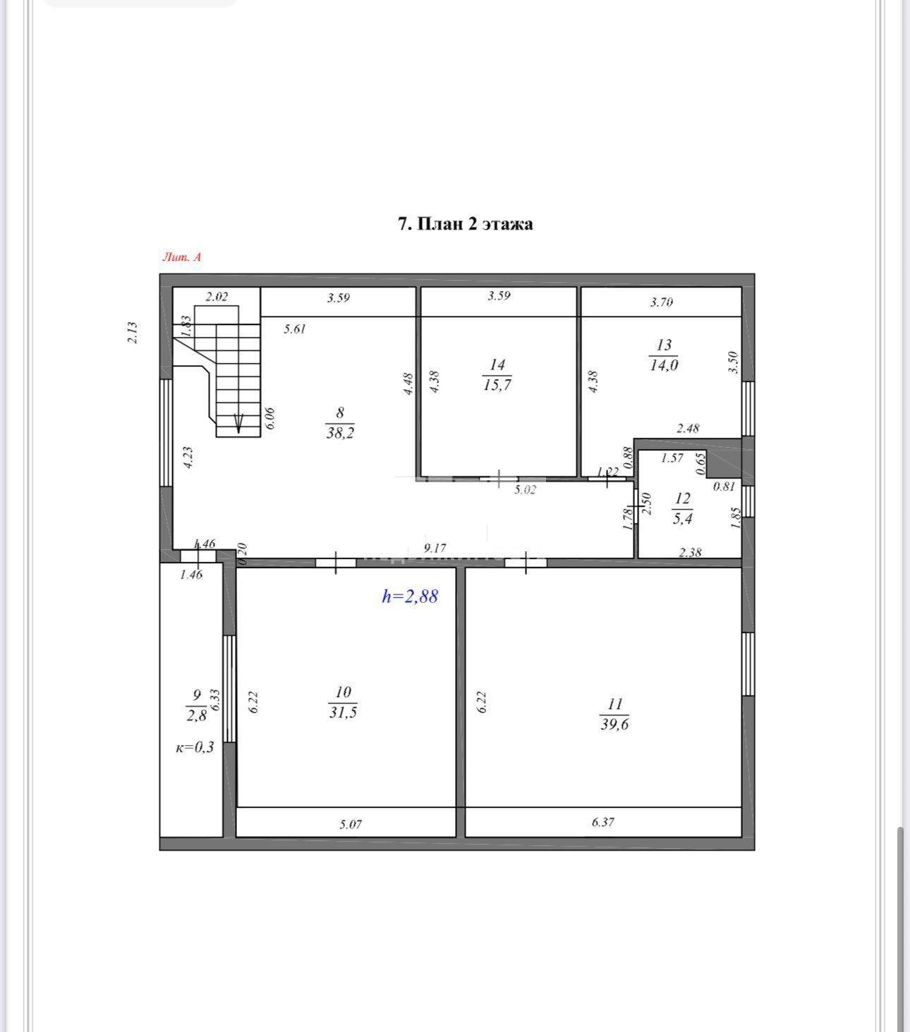
Планировка: 1 эт. : кухня-гостиная единое пространство, 2 комнаты, гардеробная, с/у;2 эт. : холл (свободное назначение, большое пространство) с выходом на балкон, хозяйская спальня со своим с/у и гардеробной) , 2 спальни, гардеробная, с/у.
Конструктив: фундамент- плита; стены- блок, утеплитель, штукатурка, покраска; крыша- металлочерепица; окно- двухкамерные пластиковые стеклопакеты.
Коммуникации: электричество -разведено по дому, газ по границе участка, вода и канализация - сделаны закладные.
Участок правильной формы. Огорожен с трёх сторон.
Удобная транспортная доступность до ст. м. Домодедовская (20 мин) на автобусе № 466. Удобные выезды на Каширское шоссе, на трассу М4, на МКАД. (Остановка в 2х минутах ходьбы) .
Документы готовы к сделке, один взрослый собственник, свободная продажа, оперативный показ, быстрый выход на сделку. [#7512930#]
Карта
Похожие
Коттеджи
Площадь м2:
225/211/14
Этаж:
0/2