Дома продажа / Коттеджи, Рахья, 11 199 000
Кратко
| ID | 39884679 |
|---|---|
| Категория | Коттеджи |
| Город | Рахья |
| Этажность | 2 |
| Площадь общая | 112 |
| Площадь участка | 8 |
Всеволожский район, Рахьинское городское поселение, СНТ Спутник-2, 28 км (35-40 мин) от КАД, 3 км от жд станции Рахья.
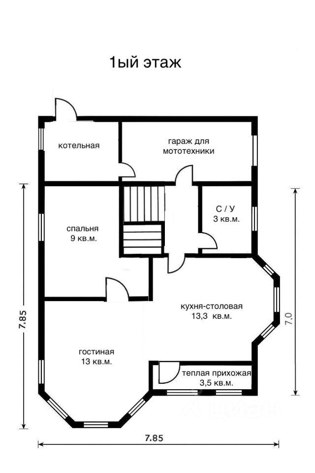
Вашему вниманию добротный зимний дом из бруса для круглогодичного проживания общей полезной площадью 112 кв.м., общая жилая площадь 47 кв.м: 1 спальня на первом этаже, и две отдельные спальни на втором, а так же светлый холл второго этажа, 2 санузла, и очень просторная кухня столовая, совмещенная с гостиной, общей площадью 26 кв.м. К дому пристроен гараж с рампой для заезда прицепа, лодки или другой мототехники, котельная, помещение для хранения хозяйственного инвентаря и заготовок, общая площадь составляет около 30 кв.м.
Дом расположен на шикарном ухоженном участке 8 соток, на котором так же есть: 2 хозблока, дровник, парник, и бревенчатая дровяная баня 6 х 9 метров с террасой, просторной комнатой отдыха, оборудованной кухней, большой помывочной и С/У, так же рядом с баней обустроена купель. На участке произрастает множество плодовых деревьев и кустарников: клубника, ежевика, яблони, слива, вишня, китайская айва, различные цветы и декоративные кустарники. Выполнены дренажные работы, с отводом грунтовых вод, границы установлены - межевание проведено, огорожен со всех сторон металлическим забором, въездная группа на 2 авто вымощена плиткой, есть декоративный пеший мостик.
Конструктив дома:
- Наружные стены - профилированный брус 200 х 150 + дополнительный утеплитель ROCKWOOL 50 мм.
- Внутренние стены - профилированный брус 100 х 150.
- Утепление пола и кровли ROCKWOOL 150 мм.
- Кровельное покрытие Ондулин.
- Внешняя отделка фасадные ЦСП плиты заводской окраски, имитирующие текстуру бруса.
- Внутренняя отделка: стены и потолок - окрашенная имитация бруса, на полу кварцвинил.
Инженерные коммуникации:
- Электричество 15 квт
- Газовое отопление с дистанционным управлением
- Вода из собственной скважины в дом подается с водоподготовкой
- Канализация септик
- Видеонаблюдение.
Инфрастурктура:
В городском поселке Рахья представлена вся социально бытовая и транспортная инфраструктура: амбулатория, школа, детсад, аптека, ясли, Сбер, стройбаза, электричка или маршрутка в город - все это всего в 3х км от Вашего дома.
Документы:
- Один взрослый собственник более 10 лет, все строения также оформлены: дом и баня, полная стоимость в договоре, любые законные формы оплаты.
Прелести и достопримечательности данного направления можно перечислять бесконечно, до ближайшего пляжа на Ладоге всего 17 км, звоните, и записывайтесь на просмотры. Въезд на территорию СНТ под шлагбаумом. По запросу могу прислать подробное видео участка, дома и бани снаружи, и бани изнутри.
Вашему вниманию добротный зимний дом из бруса для круглогодичного проживания общей полезной площадью 112 кв.м., общая жилая площадь 47 кв.м: 1 спальня на первом этаже, и две отдельные спальни на втором, а так же светлый холл второго этажа, 2 санузла, и очень просторная кухня столовая, совмещенная с гостиной, общей площадью 26 кв.м. К дому пристроен гараж с рампой для заезда прицепа, лодки или другой мототехники, котельная, помещение для хранения хозяйственного инвентаря и заготовок, общая площадь составляет около 30 кв.м.
Дом расположен на шикарном ухоженном участке 8 соток, на котором так же есть: 2 хозблока, дровник, парник, и бревенчатая дровяная баня 6 х 9 метров с террасой, просторной комнатой отдыха, оборудованной кухней, большой помывочной и С/У, так же рядом с баней обустроена купель. На участке произрастает множество плодовых деревьев и кустарников: клубника, ежевика, яблони, слива, вишня, китайская айва, различные цветы и декоративные кустарники. Выполнены дренажные работы, с отводом грунтовых вод, границы установлены - межевание проведено, огорожен со всех сторон металлическим забором, въездная группа на 2 авто вымощена плиткой, есть декоративный пеший мостик.
Конструктив дома:
- Наружные стены - профилированный брус 200 х 150 + дополнительный утеплитель ROCKWOOL 50 мм.
- Внутренние стены - профилированный брус 100 х 150.
- Утепление пола и кровли ROCKWOOL 150 мм.
- Кровельное покрытие Ондулин.
- Внешняя отделка фасадные ЦСП плиты заводской окраски, имитирующие текстуру бруса.
- Внутренняя отделка: стены и потолок - окрашенная имитация бруса, на полу кварцвинил.
Инженерные коммуникации:
- Электричество 15 квт
- Газовое отопление с дистанционным управлением
- Вода из собственной скважины в дом подается с водоподготовкой
- Канализация септик
- Видеонаблюдение.
Инфрастурктура:
В городском поселке Рахья представлена вся социально бытовая и транспортная инфраструктура: амбулатория, школа, детсад, аптека, ясли, Сбер, стройбаза, электричка или маршрутка в город - все это всего в 3х км от Вашего дома.
Документы:
- Один взрослый собственник более 10 лет, все строения также оформлены: дом и баня, полная стоимость в договоре, любые законные формы оплаты.
Прелести и достопримечательности данного направления можно перечислять бесконечно, до ближайшего пляжа на Ладоге всего 17 км, звоните, и записывайтесь на просмотры. Въезд на территорию СНТ под шлагбаумом. По запросу могу прислать подробное видео участка, дома и бани снаружи, и бани изнутри.
Контакты на сайте: