Дома продажа / Дома, Россия, Новосибирская область, село Верх-Тула, Летняя ул., 9 200 000

Кратко

ID 39840151
Категория Дома
Страна Россия
Регион Новосибирская область
Город село Верх-Тула
Улица Летняя ул.
Этажность 2
Площадь общая 146
Площадь участка 7
Телефон
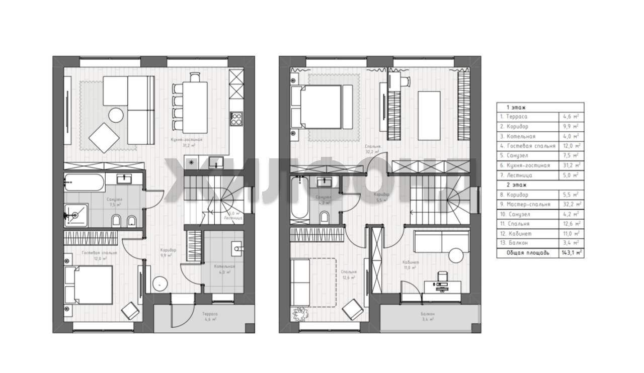
Дом по ул. Летняя (ДНП Сибирские просторы) . Общей площадью: 146.00 кв.м. Просторный и уютный Дом 146 кв. м на участке 7 соток в живописном месте Эко поселок Сибирские просторы. Площадь дома позволяет разместить большую семью и создать комфортные условия для жизни. При строительстве использовался современный дизайн, и материалы: ленточный фундамент, теплый пол, высокотемпературный контур у 5-ти камерных брошированных окон Рехау. Высота потолков 1 этаж - 3,2м, 2 этаж - 3,5 м. Дверь с терморазрывом. Полностью сделана разводка электрики (интернет кабель, ТВ и свет) . Фасад утеплен, оформлен декоративной штукатуркой в комбинации с планкеном из лиственницы, что выглядит очень стильно и красиво! На участке можно организовать красивый сад или огород, также есть место для отдыха и барбекю. Одно из главных преимуществ этого дома - его расположение. Вокруг много зелени и чистый воздух, что делает это место идеальным для тех, кто ценит спокойную и здоровую жизнь на природе. В непосредственной близости от дома находятся лес и озера, недалеко Обское водохранилище, где можно проводить время на природе и заниматься активными видами спорта. Для любителей рыбалки и охоты здесь также найдется множество возможностей. Для тех, кто предпочитает городскую жизнь, до центра города всего 30 минут езды на автомобиле. Этот дом станет отличным выбором для тех, кто хочет жить в красивом и уютном месте, наслаждаясь природой и тишиной! Не упустите возможность приобрести свой уголок счастья в прекрасном месте! Звоните прямо сейчас и мы с радостью организуем для вас просмотр этого замечательного дома. ПОМОЖЕМ ПОЛУЧИТЬ КРЕДИТНОЕ РЕШЕНИЕ. ОБЪЕКТ ПОДХОДИТ ПОД СЕЛЬСКУЮ ИПОТЕКУ - 3! ! Возможен обмен на вашу недвижимость. Возможна продажа в рассрочку. При звонке, пожалуйста, сообщите номер варианта - JV008054168957 [#6788498#]

Карта

Похожие

Дома
Площадь м2: 146//
Этаж: 0/2
Дома
Площадь м2: 146//
Этаж: 0/2
Дома
Площадь м2: 80.2//
Этаж: 0/2
Дома
Площадь м2: 108.1//
Этаж: 0/2