Дома продажа / Дома, Россия, Новосибирская область, село Новолуговое, Строевая улица, 2 199 000

Кратко

ID 39862307
Категория Дома
Страна Россия
Регион Новосибирская область
Город село Новолуговое
Улица Строевая улица
Этажность 1
Материал стен кирпичный
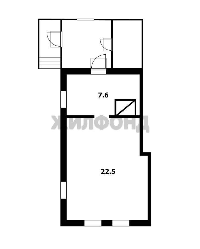
Площадь общая 42.5
Площадь участка 8.25
Телефон
1/2 дома по ул. Строевая. Общей площадью: 42.50 кв.м. ВНИМАНИЕ! ! Продается 1.2 кирпично-шлакоблочного и очень теплого одноэтажного дома на ленточном фундаменте и металлической кровлей 1961 года постройки (42,5кв. м и 8,25сотки принадлежит нашей половине дома! ) . Все коммуникации-центральные, за исключением канализации (септик) . Дом построен из качественных материалов и хорошо удерживает тепло, что позволяет сэкономить на оплате коммунальных услуг. Не так давно в квартире был сделан ремонт (2023г) , а также заменена электропроводка (медь, 2022г) и крыша (металлопрофиль, 2022г) . В самой квартире Вы почувствуете себя уютно-в ней есть вся необходимая мебель и техника для комфортного проживания и , обратите внимание-ВСЕ, ЧТО ВЫ ВИДИТЕ НА ФОТОГРАФИЯХ-ОСТАЕТСЯ БУДУЩЕМУ ПОКУПАТЕЛЮ! ! Транспортная доступность района также является преимуществом. Рядом с домом расположены остановки общественного транспорта (700м) , откуда можно быстро добраться до любой точки города и также имеется все необходимое для комфортной жизни: магазины, аптеки, банки, школы, детские сады. Не упустите возможность стать счастливым обладателем этого уютного и комфортного жилья в прекрасном районе Новосибирска. ТОЛЬКО ЗА НАЛИЧНЫЙ РАСЧЕТ! ! Полное юридическое сопровождение сделки. -Не откладывайте звонок на завтра и приходите на просмотр первыми! Возможен обмен на вашу недвижимость. Возможна продажа в рассрочку. При звонке, пожалуйста, сообщите номер варианта - JV008054176260 [#7173364#]

Карта

Похожие

Дома
Площадь м2: 42.5//
Этаж: 0/1
Дома
Площадь м2: 313.2//
Этаж: 0/3
Дома
Площадь м2: 100//
Этаж: 0/3
Дома
Площадь м2: 240//
Этаж: 0/2
Дома
Площадь м2: 118.6//
Этаж: 0/2